Alwyn Road, Bilton, Rugby

3 Bedroom Bungalow - Semi Detached - £349,950 - Sold

Key Features

  • Beautifully Presented Semi Detached Bungalow
  • Lounge
  • Kitchen
  • Conservatory
  • Three Good Size Bedrooms
  • Family Bathroom
  • Loft Conversion Master Bedroom Suite
  • Gas Central Heating, Double Glazing
  • Driveway , Garage, Office/Hobby Room
  • Well Maintained Front and Rear Gardens

Property Details

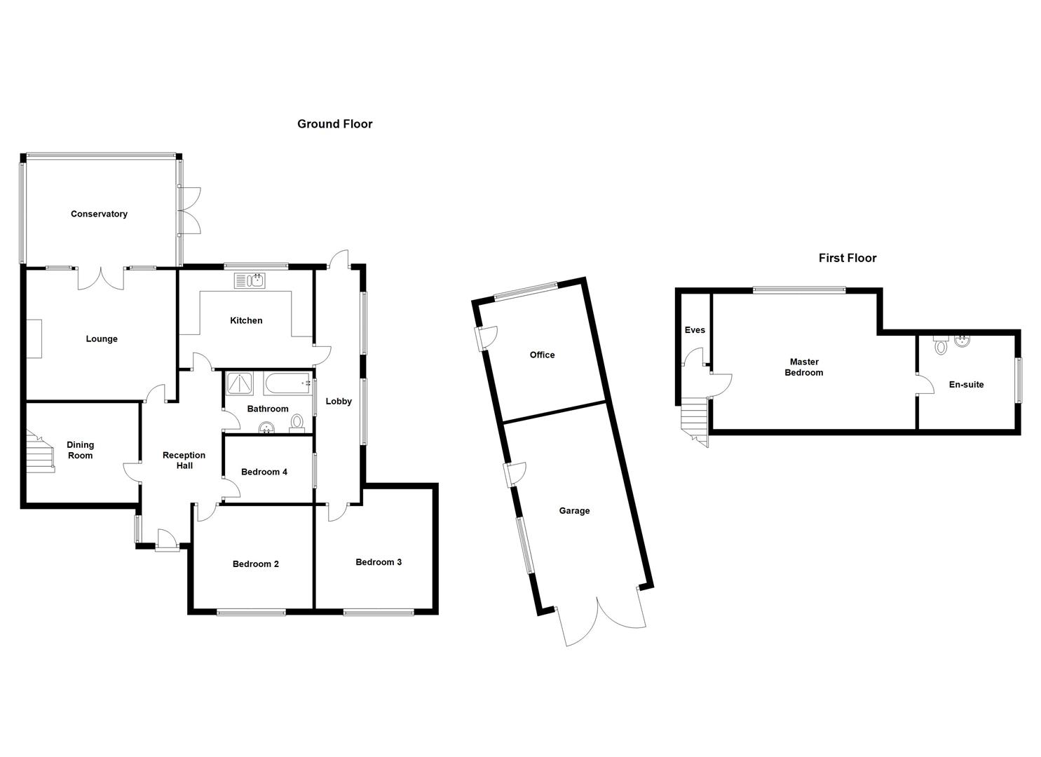
Crowhurst Gale are pleased to offer for sale this beautifully presented four-bedroom bungalow, situated in the ever-popular Alwyn Road, which lies just south of Bilton village. The property offers excellent versatile living space, which briefly comprises: reception hallway with wooden style laminate flooring, modern fitted kitchen, three well proportioned bedrooms, four piece bathroom suite, lounge with feature open fireplace and French doors leading to a well designed conservatory, which overlooks the rear garden and patio area. In addition the property benefits from a loft conversion, which creates a spacious master bedroom suite. Outside there is ample off road parking, a single garage and purpose built office/hobby room, set within attractive well-maintained front and rear gardens.

Reception Hall

With uPVC opaque double glazed leaded door. Coving to ceiling. Inset spot lighting. Wooden style laminate flooring. uPVC opaque double glazed leaded window to side.Two radiators. Doors to:

Dining Room (3.50m x 3.47m)

With wooden style laminate flooring. Inset spot lighting. uPVC double glazed leaded window to front. Radiator. Stairs rising to first floor with feature lighting.

Lounge (4.88m x 3.65m)

With feature open fireplace in wooden surround and tiled hearth. Coving to ceiling. TV aerial point. Wooden style laminate flooring. Radiator. uPVC double glazed leaded French doors leading into:

Conservatory (3.82m x 3.13m)

With wooden style laminate flooring. Underfloor heating. uPVC double glazed windows with leaded top light openings. Double glazed self cleaning roof with ceiling fan. uPVC double glazed door leading to rear garden and patio area. Radiator.

Kitchen (3.62m x 3.33m)

With stainless steel sink unit with mixer pillar tap over and additional purified water tap. Range of base units, wall cupboards, glass display units with under cupboard lighting and work surfaces. Four ring Halogen hob. Eye level electric fan assisted double oven. Ceramic tiled walls and flooring. uPVC double glazed leaded windows to side and rear. Radiator. Glazed door to:

Side Lobby (6.41m x 1.20m)

With part tiled flooring. Two leaded double glazed windows to side. Radiator. uPVC opaque double glazed leaded door to rear. Glazed door leading to:

Bedroom 3 (3.32m x 3.03m)

With coving to ceiling. uPVC double glazed leaded window to front. Radiator.

Bedroom 2 (3.50m x 3.32m)

With range of fitted wardrobes and bedside cabinets providing hanging space and storage. uPVC double glazed leaded windows to front. Radiator.

Bedroom 4 (2.64m x 2.65m)

With fitted desk with drawers and storage space. TV aerial point. Double glazed window. Radiator.

Bathroom (2.80m x 2.65m)

With fully tiled shower cubicle with electric Triton shower, panelled bath, pedestal wash hand basin and close coupled wc. Ceramic tiling. Extractor fan. Non slip tiled flooring. uPVC opaque double glazed window. Stainless steel hot water heated towel rail/radiator.

First Floor Landing

With storage cupboard. Door to:

Master Bedroom (5.03m x 5.10m)

With built in dressing table. Eaves storage space. Inset spot lighting. uPVC double glazed leaded window to rear. Radiator. Door to:

En Suite (2.47m x 2.62m)

With pedestal wash hand basin, close coupled wc. Fully tiled ceramic walls and flooring. Built in storage unit. Eaves storage space. uPVC opaque double glazed leaded window. Extractor fan. Stainless steel hot water heated towel rail/radiator.
Space and plumbing for automatic washing machine and tumble dryer. (Plumbing for bath - which is available if required). Velux window with fitted blinds.

Outside

Spacious frontage, enclosed by picket fencing, laid mainly to lawn with block paved pathway. Privet hedging and well stocked flower and shrub borders. Small decked area. Gated access to rear garden. Block paved driveway providing off road parking for several cars and direct access to detached garage with wooden double doors, power and light. Storage to apex of roof. uPVC double glazed leaded window to side. Personal door from garden. Door to Office/Hobby Room.

Good size enclosed rear garden with paved patio areas. Lawn area with well stocked mature flower and shrub borders. Decked area with metal pergola covering swing seat. Greenhouse.

Office/Hobby Room

With tiled flooring. Range of base units with work surfaces and shelving. Inset spot lighting. uPVC double glazed leaded window to rear. Glazed door.

Market Appraisal

If you are considering selling your property, we would be delighted to give you a free no obligation market appraisal. Our experience, knowledge and marketing with local and internet advertising will get your property seen and stand out from the crowd. Please contact us to arrange your property appraisal.

Mortgage Services

Crowhurst Gale Mortgage and Financial Services Ltd can offer professional mortgage advice and will help to find the right product that will suit your budget and needs from virtually the whole of the mortgage market.

Conveyancing Services

Our solicitors work on a no sale, no fee basis. They work longer hours than the conventional solicitor and are available weekends. Please contact us for more information on our conveyancing services.

Tenure

Freehold

Viewing

By appointment only through Crowhurst Gale Estate Agents 01788 522266

Location




Facebook