Vale View, Newton Road, Newton, Rugby

2 Bedroom House - Semi-Detached - £229,950 - Sold

Key Features

  • Semi Detached Cottage
  • Entrance Porch, Hallway
  • Lounge
  • Kitchen/Breakfast Room
  • Conservatory
  • Shower Room
  • Two Bedrooms
  • Upstairs WC
  • Garage, Off Road Parking
  • NO CHAIN

Property Details

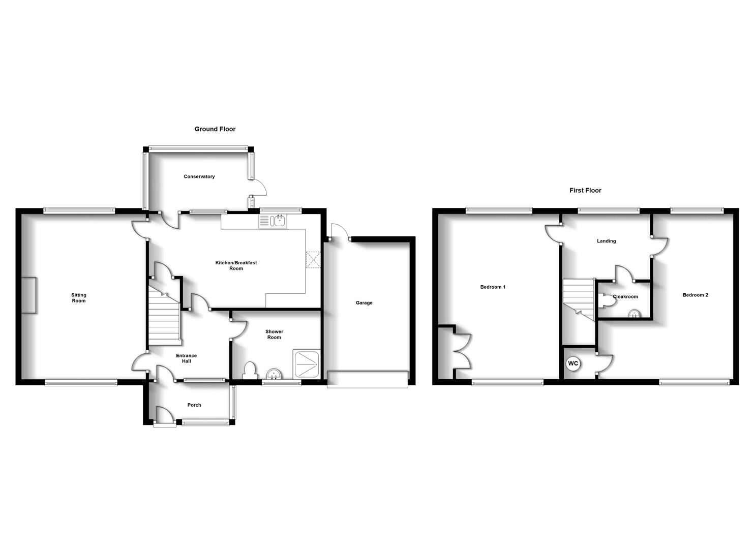
Crowhurst Gale are delighted to offer for sale this two bedroom semi detached cottage set in the sought after village of Newton on the northern outskirts of Rugby, conveniently situated for local Church, Public House, excellent schooling within nearby Clifton village, Rugby town centre with its wide range of shops and amenities and the surrounding motorway networks. The property would benefit from some improvement and updating and is offered with NO CHAIN. In brief the accommodation comprises: entrance porch, hallway, lounge, kitchen/diner, conservatory, shower room, two bedrooms and wc and benefits from double glazing and gas fired central heating. To the front there is a small fore garden with flower borders and pathway to front door. Direct access to garage with electric power and light. Good size rear garden laid mainly to lawn with extensive views over the open countryside.

Entrance Porch

Entry via uPVC double glazed door. Two double glazed windows to front and side. Opaque glazed door into hall.

Entrance Hallway

Stairs to first floor. Radiator. Window to front. Doors leading to:

Sitting Room (4.46 x 4.70)

With double glazed window to front and rear. Feature fireplace with built in television stand and tiled hearth. Coving to ceiling. Radiator.

Kitchen/Breakfast Room (5.10 x 2.71)

With one and half bowl polycarbonate sink and drainer with swan neck mixer tap. Ceramic tiling. Range of base units, wall cupboards and rolled top work surfaces. Space for fridge and freezer. Space and plumbing for automatic washing machine. Space for gas cooker. Wall mounted gas fired boiler for central heating and domestic hot water. Under stair storage cupboard. Two double glazed windows. Radiator. Stable door.

Conservatory (2.95 x 2.44)

Built of uPVC panels and double glazed units. Polycarbonate roof. Outside wall mounted light. Radiator.

Downstairs Shower Room (2.57 x 1.84)

With double glazed opaque window to front. Ceramic tiled flooring. Shower with electric Trident shower fitted. Pedestal wash hand basin and close coupled wc. Radiator.

First Floor Landing

Window with beautiful views over open countryside.

Bedroom 1 (4.74 x 4.25)

With duel aspect double glazed windows to front and rear. With built in wardrobe providing hanging space and storage. Radiator.

Bedroom 2 (4.19 x 4.64)

With double glazed windows to front and rear. Over stair storage cupboard. Radiator. Access to loft space.

WC

With close coupled wc and wall mounted corner sink unit. Extractor fan.

Outside

To the front is a small fore garden with lawn area and flower borders. Parking for one vehicle and direct access to GARAGE with electric roller doors, power and light. personal door leading to rear. Access to roof space.
Good sized rear garden overlooking open countryside, laid mainly to lawn with shrub and flower borders. Paved patio area. Greenhouse. Cold water tap.

Market Appraisal

If you are considering selling your property, we would be delighted to give you a free no obligation market appraisal. Our experience, knowledge and marketing with local and internet advertising will get your property seen and stand out from the crowd. Please contact us to arrange your property appraisal.

Mortgage Services

Crowhurst Gale Mortgage and Financial Services Ltd can offer professional mortgage advice and will help to find the right product that will suit your budget and needs from virtually the whole of the mortgage market.

Conveyancing Services

Our solicitors work on a no sale, no fee basis. They work longer hours than the conventional solicitor and are available weekends. Please contact us for more information on our conveyancing services.

Local Authority

Rugby Borough Council

Tax Band

Tax Band: D

Directions For Sat Nav

CV23 0DR

Tenure

Freehold

Viewing

By appointment only through Crowhurst Gale Estate Agents 01788 522266

Location




Facebook