Woodleigh Road, Long Lawford, Rugby

4 Bedroom House - Semi-Detached - £235,000 - Sold

Key Features

  • Modern Town House
  • Lounge
  • Kitchen
  • Dining Room
  • Four Bedrooms & Two En Suites
  • Bathroom
  • Garden Room
  • Upvc Double Glazing & Gas Central Heating
  • Rear Garden
  • Integral Garage & Off Road Parking

Property Details

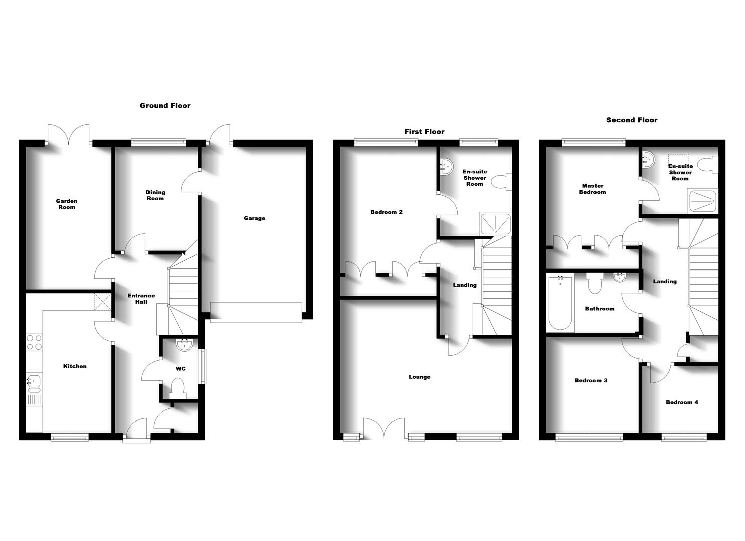
Crowhurst Gale Estate Agents are pleased to present this semi detached modern town house in the popular village of Long Lawford, situated close to amenities and schools. In brief the property comprises over three floors: Entrance hall, kitchen, dining room, garden room and cloakroom to the ground floor. To the first floor there is the lounge, bedroom with en suite. To the second floor there are three bedrooms with en suite and bathroom. Further benefits include: Upvc double glazing, gas central heating, rear garden, integral garage and off road parking.

Frontage

Off road parking with access to integral garage via up and over door. Outside tap. Decorative slate chippings.

Entrance Hall

Enter via glazed front door. Stairs rising to first floor. Door to storage cupboard. Radiator, telephone point. Doors to:

Kitchen (4.06m x 2.50m)

Upvc double glazed window to front aspect. A range of eye and base level units with work top surfaces, inset one and a half stainless steel sink with drainer and mixer tap over. Tiled splash backs. Fitted four ring gas hob with extractor over and fan assisted electric oven below. Fitted slimline dishwasher. Space and plumbing for washing machine. Space for fridge/freezer. Wall mounted combi boiler, radiator.

Dining Room (3.07m x 2.04m)

Upvc double glazed window to rear aspect, radiator, door to garage.

Garden Room (4.18m x 2.51m)

Upvc double glazed french doors to rear garden. T.V aerial point, radiator.

Cloakroom

Upvc obscure double glazed window to side aspect. Low level w.c, wall mounted wash hand basin.

First Floor Landing

Radiator, door to:

Lounge (4.77m max x 4.61m)

L shaped room. Upvc double glazed window to front aspect with Upvc double glazed french doors to Juliet balcony. T.V aerial point, two radiators.

Bedroom Two (2.88m x 2.71m)

Upvc double glazed window to rear aspect. Fitted wardrobes, T.V aerial point, radiator. Door to:

En Suite Shower Room (1.84m x 1.83)

Upvc obscure double glazed window to rear aspect. Fully tiled shower cubicle, pedestal wash hand basin, low level w.c, radiator, extractor fan.

Second Floor Landing

Upvc double glazed window to side aspect, door to storage cupboard housing hot water tank and shelving above. Radiator and doors to:

Master Bedroom (2.90m x 2.71m)

Upvc double glazed window to rear aspect. Fitted wardrobes, T.V aerial point, radiator. Door to:

En Suite Shower Room (1.85m x 1.83m)

Velux window to rear aspect. Fully tiled shower cubicle, pedestal wash hand basin, low level w.c, radiator, extractor fan.

Bathroom (2.59m x 1.82m)

A single panelled bath with part tiled wall. Low level w.c, pedestal wash hand basin, extractor fan, radiator.

Bedroom Three (2.87m x 2.45m)

Upvc double glazed window to front aspect, radiator.

Bedroom Four (2.36m x 2.11m)

Upvc double glazed window to front aspect, radiator.

Rear Garden

Enclosed rear garden with paved patio area. Lawn with various planting areas, tress to rear.

Garage

Access via up and over door to front. Power and light connected. Personal double glazed door into rear garden. Door into dining room.

Market Appraisal

If you are considering selling your property, we would be delighted to give you a free no obligation market appraisal. Our experience, knowledge and marketing with local and internet advertising will get your property seen and stand out from the crowd. Please contact us to arrange your property appraisal.

Mortgage Services

Crowhurst Gale Mortgage and Financial Services Ltd can offer professional mortgage advice and will help to find the right product that will suit your budget and needs from virtually the whole of the mortgage market.

Conveyancing Services

Our solicitors work on a no sale, no fee basis. They work longer hours than the conventional solicitor and are available weekends. Please contact us for more information on our conveyancing services.

Local Authority

Rugby Borough Council

Tax Band

Tax Band: E

Tenure

Freehold

Directions For Sat Nav

Directions For Sat Nav: CV23 9FB

Viewing

By appointment only through Crowhurst Gale Estate Agents 01788 522266

Location




Facebook