School Lane, Stretton On Dunsmore, Rugby

4 Bedroom House - Detached - £479,950 - Sold

Key Features

  • Beautiful Detached Residence
  • Four Bedrooms
  • Good Size Lounge
  • Dining Room
  • Study
  • Kitchen/Breakfast
  • Utility Room
  • Double Glazed
  • Gas Central Heating
  • Good Size Plot

Property Details

Crowhurst Gale are pleased to offer to the market this very well presented and upgraded home comprising; hallway, large lounge, dining room, study, ground floor WC, breakfast kitchen and utility. On the first floor there are four well proportioned bedrooms (with the master suite having en-suite facilities) and a family bathroom. Outside there is are well stocked gardens and parking for several cars. Being sold with no chain. Stretton On Dunsmore - Is a beautiful rural Warwickshire village location containing a good range of local facilities and amenities including shops, local schools and recreational facilities and within easy reach of a number of work centres including Leamington Spa, some ten miles distant, Warwick, Rugby and Coventry. The motorway network is easily accessed via the A45 which runs close to the village. This pleasant village has consistently proved to be extremely popular in recent years.

Frontage

Driveway giving parking for several vehicles, Lawned area with various shrubs and trees. Access to the side to rear garden.

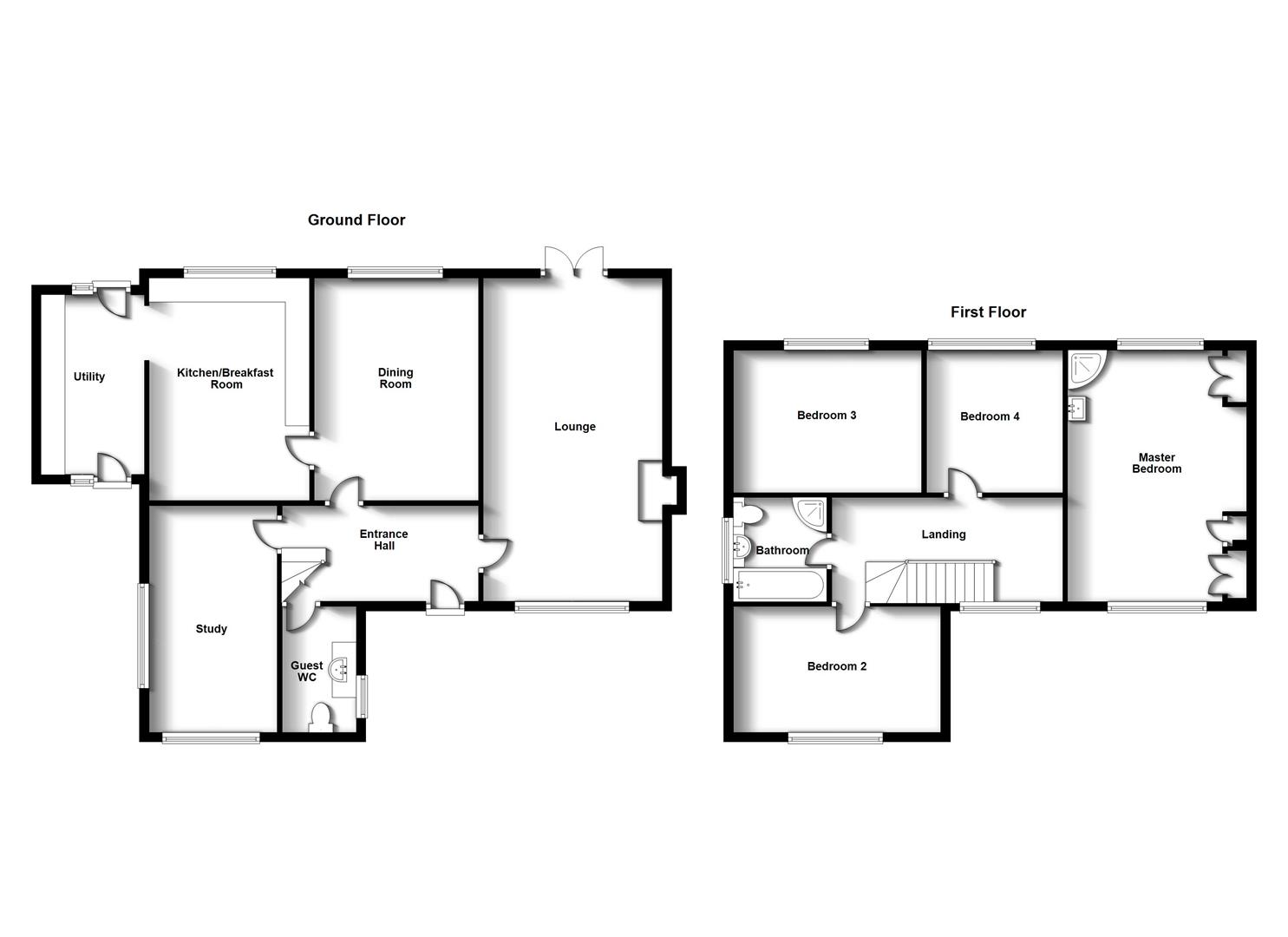
Entrance Hallway

Enter via wooden and glazed, leaded door into spacious hallway, stairs to first floor, radiator and coving to ceiling. Doors leading to:

Guest WC

Closed cistern WC and vanity wash hand basin. Heated towel rail and double glazed window to side aspect. 'Karndean' Flooring.

Lounge (6.70 x 3.61)

Spacious lounge with feature gas living flame fireplace. Coving to ceiling, two radiators, double glazed window to front aspect and double glazed 'French Doors' to the rear garden and patio area.

Dining Room (4.62 x 3.04)

Double glazed window to rear aspect, radiator, dado rail and coving to ceiling. Door to:

Study (4.78 2.73)

Double glazed window to front and side aspect. Radiator, Telephone point.

Kitchen/Breakfast (3.24 x 4.60)

Double glazed window to rear aspect. Double glazed door leading to rear garden. Polycarbonate one and a half sink and drainer with base unit under, further base and wall units and drawers. Rolled worktop surfaces. Five ring gas hob with extractor over, Electric double oven. Built in dishwasher, fridge and freezer. Radiator. Through-fare to:

Utility Room (3.47 x 2.14)

Double glazed window and door to both front and rear aspects. Space and for washing machine, tumble dryer and upright freezer. Continuation of kitchen units and worktop surface. Radiator.

First Floor Landing

Double glazed window to the front aspect. Access to loft space. Storage cupboard. Doors to:

Bedroom One (5.00 x 4.00)

Double glazed window to front and rear aspect. Radiator. Shower cubical with electric shower fitted. Small vanity wash hand basin. Coving to ceiling. Built in wardrobes.

Bedroom Two (2.77 x 4.09)

Double glazed window to front aspect. Radiator.

Bedroom Three (2.42 x 3.77)

Double glazed window to rear aspect. Radiator.

Bedroom Four (2.98 x 2.36)

Double glazed window to rear aspect. Radiator. Built in wardrobe.

Bathroom (2.47 x 2.69)

Double glazed window to rear aspect. Radiator. Shower cubical with mains shower fitted. Vanity unit with inset wash hand basin and closed cistern WC. Panelled bath. Tiled walls and flooring.

Rear Garden

Paved patio area with steps to a raised lawn further patio area to the rear of the garden. Well stocked garden which is enclosed with wooden fencing.

Market Appraisal

If you are considering selling your property, we would be delighted to give you a free no obligation market appraisal. Our experience, knowledge and marketing with local and internet advertising will get your property seen and stand out from the crowd. Please contact us to arrange your property appraisal.

Mortgage Services

Crowhurst Gale Mortgage and Financial Services Ltd can offer professional mortgage advice and will help to find the right product that will suit your budget and needs from virtually the whole of the mortgage market.

Conveyancing Services

Our solicitors work on a no sale, no fee basis. They work longer hours than the conventional solicitor and are available weekends. Please contact us for more information on our conveyancing services.

Tax Band

Tax Band: E

Tenure

Freehold

Local Authority

Rugby Borough Council

Viewing

By appointment only through Crowhurst Gale Estate Agents 01788 522266

Location




Facebook