Main Street, Shawell, Lutterworth

4 Bedroom House - Detached - £625,000 - Sold

Key Features

  • Stylish Contemporary Detached Property
  • Four Bedrooms
  • Principal Bedroom With En-Suite & Dressing Room
  • Open Plan Living
  • Two En-Suite Bedrooms
  • Sought After Village Location
  • Large Rear Garden
  • Large Patio Area

Property Details

A superbly appointed four bedroom detached 'Life Style' house located in the picturesque village of Shawell. The owners have recently refurbished and extended their home to create fabulous contemporary and spacious, open plan accommodation. A particular feature of the property is the stunning rear garden which is measures approximately half an acre with a wonderful beach influenced entertainment area which is ideally placed to enjoy the sunshine for those summer evenings.

Frontage

Gravelled driveway with steps up to further slate beds with retaining wall and pathway to front door and access to sides of the property. Exterior lighting.

Entrance Vestibule

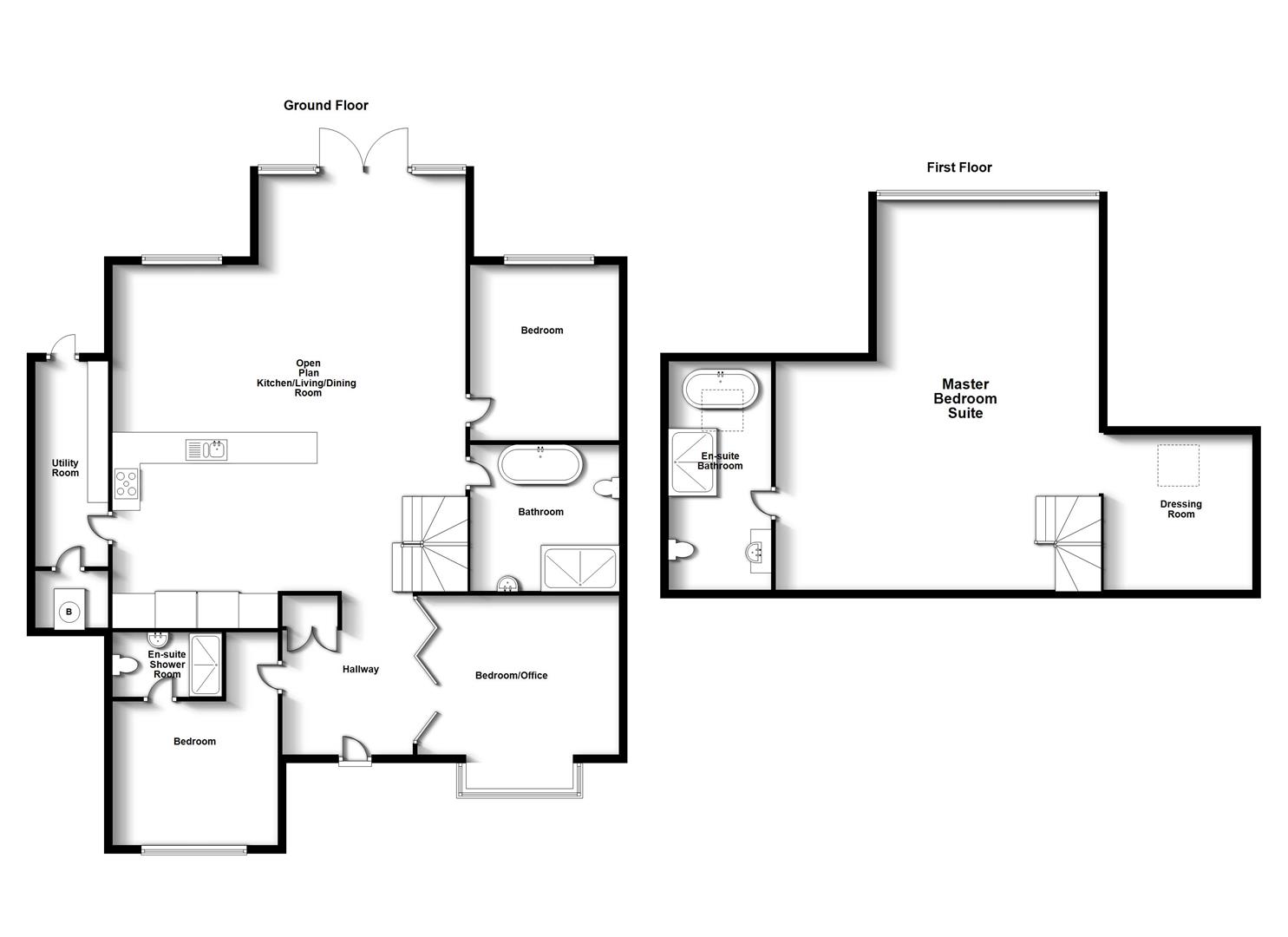
Enter via front door into hallway. Natural slate tiled flooring. Coat cupboard with hanging space. Door leading to Bedroom with En-Suite and through-fare to Open Plan Living/Kitchen/Dining Room

Bedroom (3.40 x 2.66)

Double glazed window to front aspect. Radiator. Door to En-Suite.

En-Suite

Shower cubical. Wash hand basin set within a vanity unit and WC. Ceramic tiling.

Bedroom/Office (4.26 x 3.28 min 4.35 into bay)

Bi-fold doors leading in. Double glazed box bay window to front aspect. Radiator.

Open Plan Living/Kitchen/Dining Room

The ground floor has wooden style laminate flooring except the kitchen which has natural slate tiles

Kitchen Area (4.05 x 2.90)

Schuller kitchen with natural slate tiled flooring, range of contemporary base units with wooden style work surfaces, 'Neff' Integrated fridge freezer, two 'Neff' double electric oven, 'Smeg' integrated dishwasher, four ring Stoves halogen hob with stainless steel splash-back and stainless steel extractor hood over, one and a half bowl drainer with mixer tap.

Utility Room (5.53 x 1.51)

Roll top surface with space and plumbing for washing machine and tumble dryer. Two 'Velux' ceiling windows. Door To rear.

Boiler Room

Oil fired boiler with floor standing pressurized hot water cylinder,

Sitting Area

Wood effect flooring, feature cast iron multi fuel log burner, Double glazed window to rear elevation.

Dining Area (7.46 x 6.03 max 3.58 min)

Windows with large 'French' doors with views over the rear patio and rear garden. Two designer radiators. Doors off to:

Main Bathroom

Fully fitted bathroom suite with : Large bath and separate large shower enclosure with 'waterfall' shower fitted, low flush WC, wash hand basin, towel rail radiator and obscure double glazed window to side elevation.

Bedroom (2.55 x 3.55)

Double glazed window to rear. Radiator.

FIRST FLOOR

Principal Bedroom Suite (9.47 x 4.85)

Spacious room with full length windows overlooking the rear garden, radiators , sitting area and doors leading off to:

Dressing Room (2.71 x 4.37)

Double glazed 'Velux' window to the rear.

Principal En-Suite Bathroom (4.44 x 2.43)

Fully fitted bathroom suite with : Large bath and separate large shower enclosure with 'waterfall' shower fitted, low flush WC, wash hand basin, towel rail radiator, 'Velux' double glazed window to rear.

Rear Garden & Patio Area

Rear Garden - To the rear is a large patio area with raised flower and shrub borders, steps leading to a further raised gravelled area with retaining wall and further planting, access to a large timber constructed entertainment area with outside lighting. Further railway style sleeper steps leading to a large lawned rear garden of approximately half an acre with an array of mature specimen trees and shrubs. To the rear of the garden there are two large steel containers with a timber trellis and trees planted in front currently being used as a garden stores but could be converted into a summer house/office.

Location

The Conservation village of Shawell is surrounded by some of south Leicestershire's most attractive open countryside. The White Swan is located in the village which is an excellent public house and restaurant. Shawell is conveniently located for access to junction 19 of the M1 which intersects with the A14 and M6. Other nearby road networks include the A5 and A426. Rail links to London are available from either Rugby(20 mins drive) or Market Harborough(30 mins drive). The nearby town of Lutterworth offers shopping and supermarket facilities, schools and professional services.

Market Appraisal

If you are considering selling your property, we would be delighted to give you a free no obligation market appraisal. Our experience, knowledge and marketing with local and internet advertising will get your property seen and stand out from the crowd. Please contact us to arrange your property appraisal.

Mortgage Services

Crowhurst Gale Mortgage and Financial Services Ltd can offer professional mortgage advice and will help to find the right product that will suit your budget and needs from virtually the whole of the mortgage market.

Conveyancing Services

Our solicitors work on a no sale, no fee basis. They work longer hours than the conventional solicitor and are available weekends. Please contact us for more information on our conveyancing services.

Tenure

Freehold

Viewing

By appointment only through Crowhurst Gale Estate Agents 01788 522266

Tax Band

Tax Band: E

Location




Facebook