Beswick Gardens, Bilton, Rugby

3 Bedroom Bungalow - Semi Detached - Asking Price £265,000 - Sold

Key Features

  • Semi Detached
  • Extended
  • Three Bedrooms
  • Two Bathrooms
  • Gas Central Heating
  • Double Glazing
  • Off Road Parking
  • Garage
  • Rear Garden
  • No Chian

Property Details

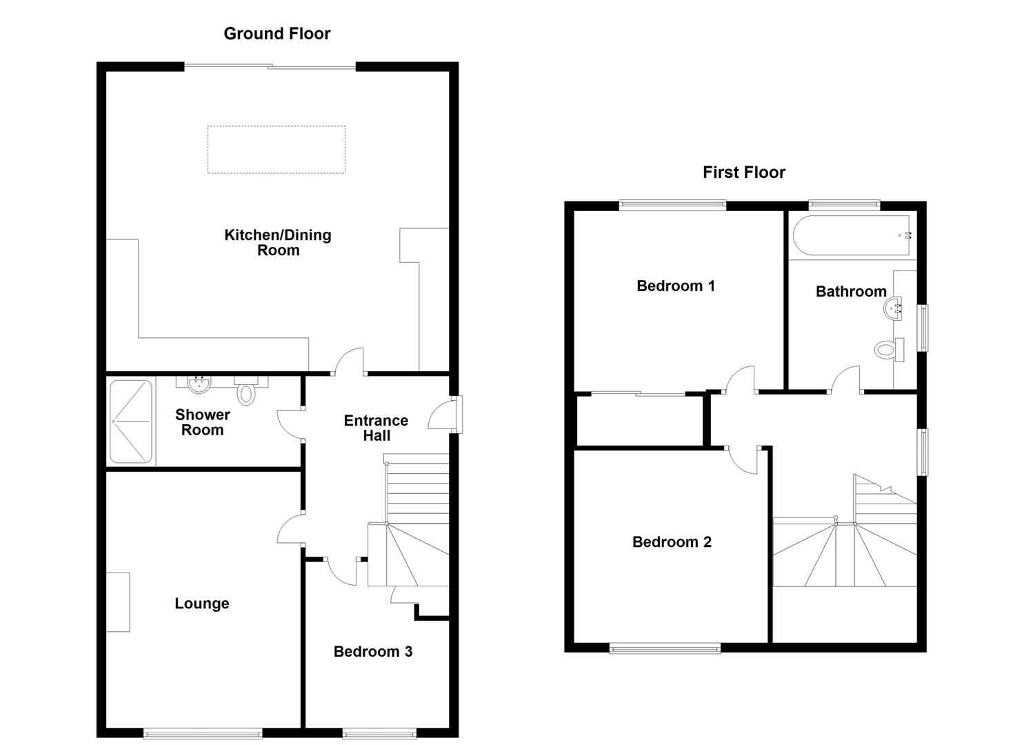
Crowhurst Gale Estate Agents are pleased to present to market this extended three bedroom semi-detached chalet style property located in the highly desirable and sought after residential area of Bilton, which is within the catchment of schooling for all ages and has a range of amenities within walking distance. The well presented flexible accommodation briefly comprises: entrance hall, lounge, extended and refitted kitchen/dining/family room, bedroom three/study, refitted ground floor shower room, two first floor double bedrooms and refitted bathroom. The property further benefits from gas central heating, Upvc double glazing, off-road parking, garage and an enclosed rear garden. Offered with NO CHAIN.

Frontage

Off road parking for several vehicles. Access to the single garage. Gravel area with further parking. Lawn with various shrubs and bushes. Outside electric power points.
Wooden gates to the side aspect.

Entrance Hall

Enter via double glazed leaded opaque glazed door. Stairs rising to the first floor, radiator. Doors to:

Lounge (4.55m x 3.02m)

Double glazed window to the front aspect, radiator. Feature open fire with wooden surround.

Bedroom Three (3.26m x 2.29mx)

Double glazed window to the front aspect, radiator. Door to storage cupboard with shelving.

Downstairs Shower Room (3.42m x 1.50m)

A part tiled suite comprising: Walk in mains fitted shower with glass screen. Vanity unit with inset wash hand basin. Low level w.c.

Open Plan Kitchen/Dining/Living Area (5.29m max x 4.80m max)

Kitchen Area

A range of eye and base level units with wooden work top surfaces, with inset one and a half stainless steel sink with drainer with mixer tap over. Tiled splash backs. Built in electric hob with extractor over. Built in electric double oven. Fitted fridge/freezer. Fitted dishwasher and washing machine. Radiator. Wooden flooring throughout.

Dining/Living Area

Double glazed french door leading onto the rear garden. Double glazed window to the side aspect. Radiator. Feature skylight.

First Floor Landing

Double glazed window to the side aspect. Open landing with storage area or ideal desk space. Doors to:

Bedroom One (3.26m x 2.72m up to fitted wardrobes)

Double glazed window to the rear aspect. Fitted wardrobes. Radiator.

Bedroom Two (3.52 x 3.18m)

Double glazed window to the front aspect, radiator. Access to eaves storage.

Bathroom (3.36m x 1.74m)

Obscure double glazed windows to the rear and side aspect. Bath with shower over. Vanity unit with inset wash hand basin. Low level w.c
Cupboard housing the gas combi boiler.

Rear Garden

Enclosed rear garden mainly laid to lawn with paved patio area. Summer house. Access to garage.

Garage (6.15m x 2.72m,m)

Wooden up and over door. Power and light connected.

Market Appraisal

If you are considering selling your property, we would be delighted to give you a free no obligation market appraisal. Our experience, knowledge and marketing with local and internet advertising will get your property seen and stand out from the crowd. Please contact us to arrange your property appraisal.

Mortgage Services

Crowhurst Gale Mortgage and Financial Services Ltd can offer professional mortgage advice and will help to find the right product that will suit your budget and needs from virtually the whole of the mortgage market.

Mortgage Services

Crowhurst Gale Mortgage and Financial Services Ltd can offer professional mortgage advice and will help to find the right product that will suit your budget and needs from virtually the whole of the mortgage market.

Local Authority

Rugby Borough Council

Tax Band

Tax Band: C

Tenure

Freehold

Directions For Sat Nav

Directions For Sat Nav: CV22 7PP

Viewing

By appointment only through Crowhurst Gale Estate Agents 01788 522266

Location




Facebook