Kingsley Avenue, Hillmorton, Rugby

3 Bedroom House - Offers over £290,000 - Sold

Key Features

  • Traditional Semi-Detached Property
  • Three Good Size Bedrooms
  • Lounge
  • Dining Room & Breakfast Room
  • Kitchen
  • Close To Paddox Parade Of Shops
  • Great Loacation
  • Excellent School Catchment
  • Garage
  • Workshop

Property Details

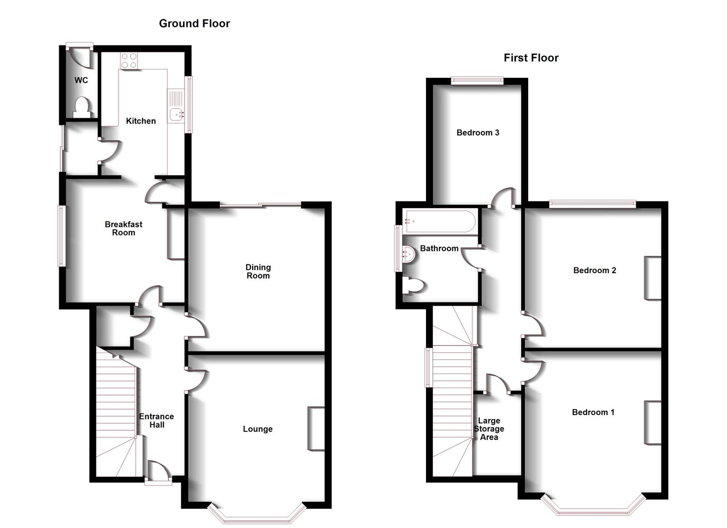
Crowhurst Gale Estate Agents are delighted to offer for sale this unique property in Hillmorton. This spacious semi-detached home is located on a corner plot and falls within easy reach of excellent schooling for all ages to include Paddox Primary, Abbotts Farm Primary and Ashlawn Secondary schools . In brief the accommodation comprises; entrance porch, entrance hall, lounge with bay window, dining room with access to the rear patio area, kitchen and breakfast room to the ground floor. On the first floor there is a family bathroom and three well proportioned bedrooms. Outside there are gardens to three sides of the property with various outbuildings, off road parking and a single detached garage. This property is offered for sale with no onward chain.

Frontage

Laid to lawn with flower and shrub borders. boundary fence. Pathway to front door.

Entrance Porch

Double glazed door into porch.

Entrance Hall

Double glazed door into light and spacious hallway, wood effect laminate flooring, under-stairs storage cupboard with electric and gas smart meters, radiator and stairs to first floor.

Lounge (4.37 x 3.64)

Double glazed bay window to front, radiator, open fireplace with Italian stone surround and hearth.

Dining Room (3.63 x 3.67)

Patio doors leading outside rear, radiator and feature fire place.

Breakfast Room (2.61 x 2.91)

Double glazed window to side and radiator. Chimney breast which is an ideal space for a log burner.

Kitchen (3.44 x 2.20)

Double glazed window to the side. A range of eye and base level units with work top surfaces, inset stainless steel sink with mixer tap over. Tiled splash backs. Fitted four ring hob with extractor over. Fitted electric oven underneath. Space and plumbing for slim dishwasher and washing machine. Space for fridge/freezer. Gas boiler servicing heating and hot water. Door leading to Side Porch.

Side Porch

Sliding door to outside

First Floor Landing

Leaded double glazed window to side. Access to loft space. Door to large cupboard. Doors leading off to:

Bedroom One (4.50m x 3.28m up to chimney breast)

Double glazed bay window to front, radiator and two built in wardrobes.

Bedroom Two (3.55 x 3.63)

Double glazed window to rear, radiator and built in wardrobe.

Bedroom Three (2.68 x 2.21)

Double glazed window to rear, radiator and built in wardrobe.

Bathroom

Opaque double glazed window to the side. Suite comprising: bath with shower over. w.c and wash hand basin. Radiator.

Rear Patio Area

Paved patio area with low level brick wall with step down to further patio area.

Outbuildings

Two brick built storage outhouses further workshop (2.83 x 2.17) and outside WC.

Side Gardens

Lawned areas with various shrubs and trees, boundary fencing and gate giving access to parking and front of Garage.

Garage (4.66 x 2.79)

constructed approximately 6 years ago with light connected and up and over door for vehicle access and personnel door to rear patio area.

Market Appraisal

If you are considering selling your property, we would be delighted to give you a free no obligation market appraisal. Our experience, knowledge and marketing with local and internet advertising will get your property seen and stand out from the crowd. Please contact us to arrange your property appraisal.

Conveyancing Services

Our solicitors work on a no sale, no fee basis. They work longer hours than the conventional solicitor and are available weekends. Please contact us for more information on our conveyancing services.

Mortgage Services

Crowhurst Gale Mortgage and Financial Services Ltd can offer professional mortgage advice and will help to find the right product that will suit your budget and needs from virtually the whole of the mortgage market.

Tenure

Freehold

Local Authority

Rugby Borough Council

Viewing

By appointment only through Crowhurst Gale Estate Agents 01788 522266

Location




Facebook