Hardy Close, Bilton, Rugby

4 Bedroom House - Detached - Guide Price £350,000 - Sold

Key Features

  • Beautifully Presented Detached Home
  • Entrance Hall & Cloakroom
  • Kitchen/Breakfast Room
  • Lounge & Conservatory
  • Three/Four Bedrooms
  • Dining Room
  • Upvc Double Glazing & Gas Central Heating
  • Rear Garden
  • Garage & Off Road Parking
  • Viewing Is Highly Recommended

Property Details

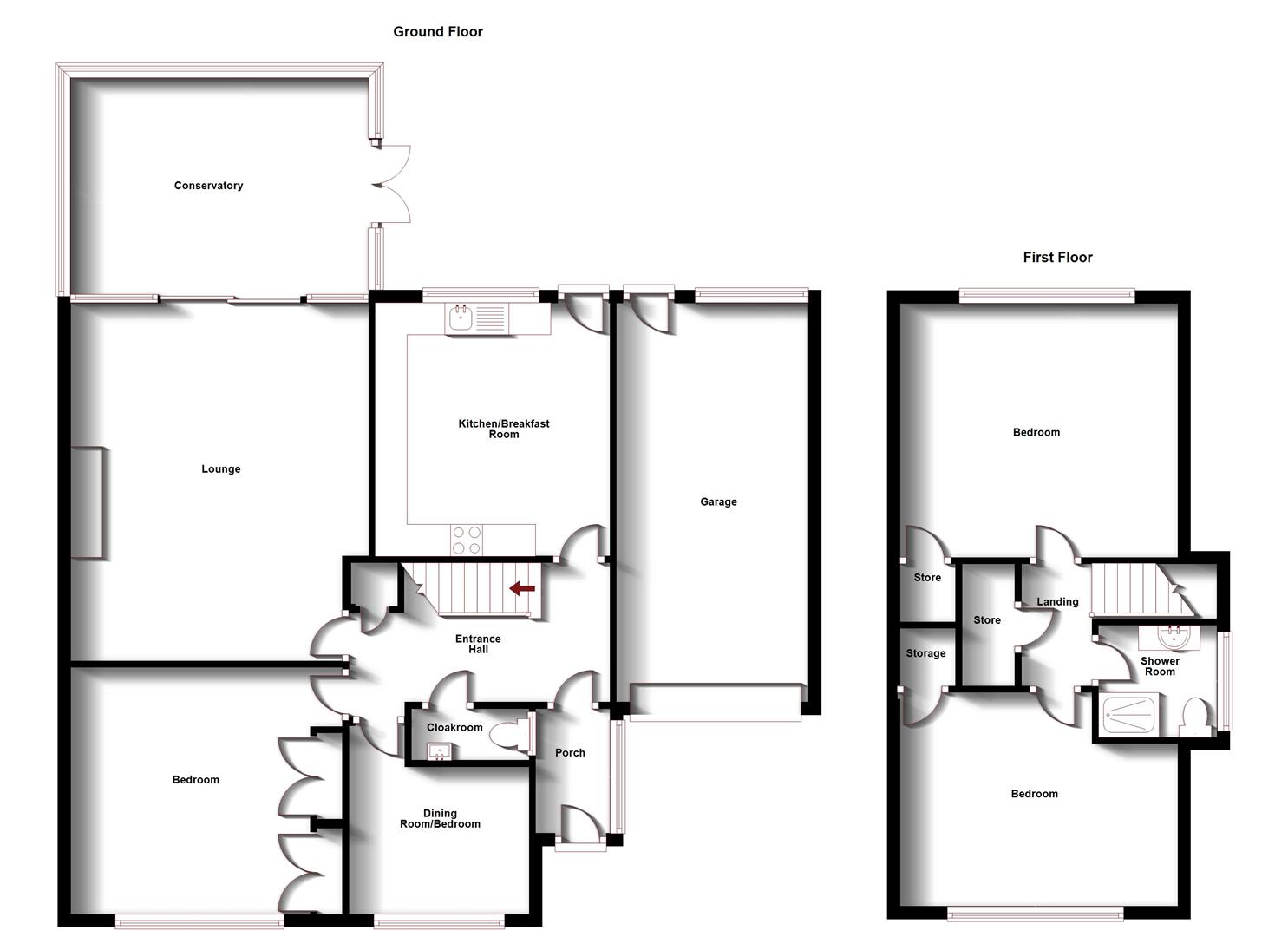
Crowhurst Gale Estate Agents are pleased to present this well presented and stylish detached home situated in the popular area of Bilton, Rugby. The property is well placed for local amenities, bus routes and schooling for all ages. In brief the home comprises: entrance porch, entrance hall, lounge, kitchen/breakfast room, conservatory, bedroom four/dining room, cloakroom and bedroom one to the first floor. To the first floor there are two further double bedrooms and a re-fitted shower room. The property further benefits from Upvc double glazing, gas central heating, beautiful rear garden, garage and ample off road parking. Viewing is highly recommended. to appreciate this stunning home.

Frontage

Blocked paved drive providing ample off road parking. Access to the rear garden via side timber gate. Access to garage with electric roller door and remote.

Entrance Porch

Enter via feature part glazed composite front door. Upvc double glazed windows to the front and side aspect. Tiled flooring.

Entrance Hall

Enter via feature Upvc glazed door. Stairs rising to first floor, door to understairs cupboard. radiator. Oak flooring. Oak doors to:

Lounge (5.10m x 4.30m max)

Double glazed sliding doors to the conservatory. Feature Victorian style gas fire with wooden surround. Radiator.

Conservatory (3.92m x 3.29m)

Of brick and Upvc construction. Upvc double glazed patio doors to the rear garden. Double glazed windows to all side. Electrical points, tiled flooring.

Kitchen/Breakfast Room (3.46m x 3.12m)

Upvc double glazed door and window to the rear aspect. A range of eye and base level units with black sparkle granite work top surfaces with sink and drainer and mixer tap over. Tiled splash backs, Under counter lighting. Fitted 'Bosch' four ring hob with extractor over. Fitted 'Bosch' grill and oven. Fitted dishwasher, fitted washing machine and washing machine. Tiled flooring, radiator, ceiling spotlights.

Cloakroom

Upvc obscure double glazed window to the side aspect. Low level w.c, vanity unit with inset wash hand basin. Tiled splash back. Feature wooden panelling. Tiled flooring.

Bedroom Four/Dining Room (3.32m x 2.67m)

Upvc double glazed window to the front aspect, radiator.

Bedroom One (4.24m x 3.75m max)

Upvc double glazed window to the front aspect, radiator. A range of fitted wardrobes.

First Floor Landing

Loft hatch. Door to storage cupboard with shelving. Oak doors to

Bedroom Two (3.43m x 3.22)

Double glazed window to the rear aspect, radiator. Two doors to eaves storage and wardrobe.

Bedroom Three (3.74m x 3.39m)

Upvc double glazed window to the front aspect, radiator. Door to eaves storage and wardobe. Door to cupboard.

Shower Room (1.87m x 1.74m)

Upvc double glazed window to the side aspect. A fully tiled suite comprising: shower cubicle, low level w.c, vanity unit with inset wash hand basin with feature waterfall tap. Ceiling spotlights, extractor fan. Heated towel rail and tiled flooring.

Rear Garden

Enclosed rear garden with paved area, lawn area. Mostly tropical plants with a variety of shrubs and other plants. Outside electrical point, tap and lighting. Feature pond. Access to the garage via personal door.

Garage (6.24m x 2.73m)

Upvc double glazed door and window to the rear aspect. Power and light connected. Wall mounted gas combi boiler. Electric door to the front with remote for access.

Market Appraisal

If you are considering selling your property, we would be delighted to give you a free no obligation market appraisal. Our experience, knowledge and marketing with local and internet advertising will get your property seen and stand out from the crowd. Please contact us to arrange your property appraisal.

Mortgage Services

Crowhurst Gale Mortgage and Financial Services Ltd can offer professional mortgage advice and will help to find the right product that will suit your budget and needs from virtually the whole of the mortgage market.

Local Authority

Rugby Borough Council

Tax Band

D

Tenure

Freehold

Directions For Sat Nav

CV22 7JA

Viewing

By appointment only through Crowhurst Gale Estate Agents 01788 522266

Location




Facebook