Kalfs Drive, Cawston, Rugby, Warwickshire

4 Bedroom House - Detached - Price Guide £549,950 - Sold

Key Features

  • Detached House
  • Four Well Proportioned Bedrooms
  • Recently Fitted Kitchen/Breakfast
  • Lounge With Gas Fire
  • Separate Dining Room
  • Rear Garden With Gazebo
  • En-Suite To Principal Bedroom
  • Good Size Plot
  • Gas Heating
  • Double Glazing

Property Details

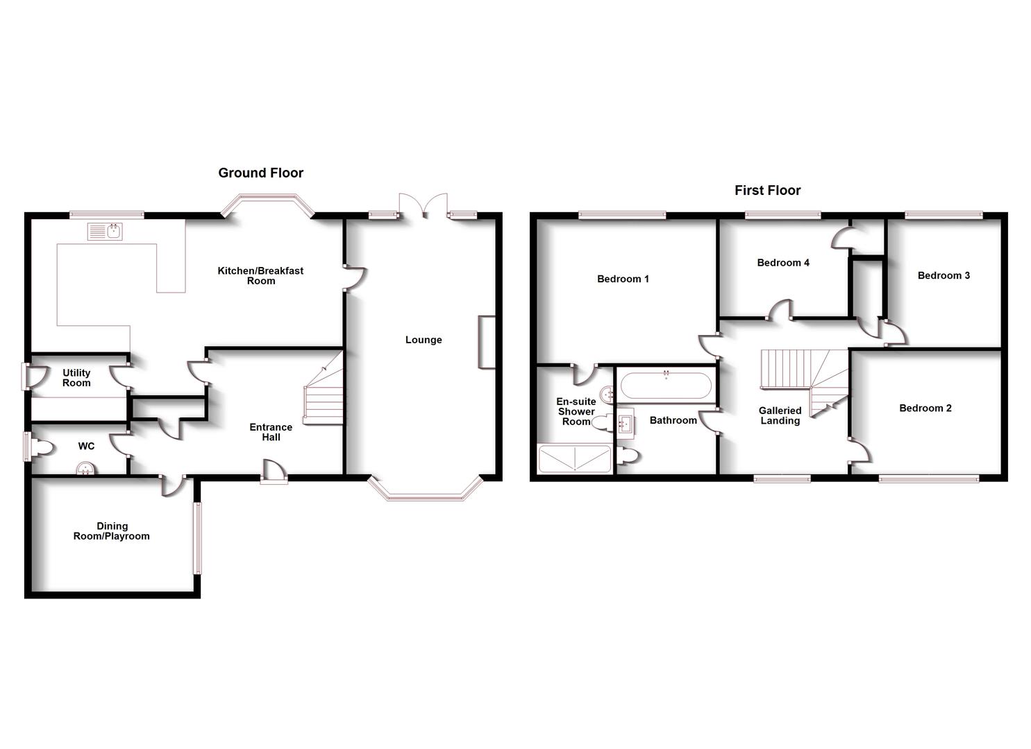
Crowhurst Gale are pleased to present this fantastic detached property, benefits from an extensive driveway and double garage, providing an exceptional amount of off road parking to the front aspect, and features an enclosed, landscaped rear garden with lawned and patio/entertaining areas, as well as mature shrubs and trees affording a good level of privacy during summer months. The property provides truly ready to move into accommodation, which has been modernised and improved by the current owners to create spacious and stylish living space arranged over two floors. The beautifully presented internal accommodation comprises in brief of an entrance hall, guest WC, lounge, high gloss refitted kitchen/diner with integrated appliances, a utility room, and family room/study on the ground floor. The first floor features a galleried landing, four bedrooms, a refitted family bathroom, and adjoining en-suite facilities to the principal bedroom. The property will make a superb family home, and further benefits from double glazing, gas central heating, and a secluded corner position at the end of this quiet cul-de-sac.

Location

Cawston is well served by a wide range of local shops and amenities, well regarded schooling, and excellent transport links to include regular bus routes, easy access to the regions central motorway networks (M1/M6 and M45), and is just ten minutes drive from Rugby train station which operates mainline services to London Euston in just 47 minutes, ideal for commuting.

Entrance Hall

Enter via a timber door with glazed panels to either side. Laminate flooring. Telephone socket. Smoke alarm. Door bell chime. Under stairs storage cupboard.

Dining Room (2.73 x 3.34)

Double glazed window to front aspect.

Cloakroom

Double glazed window to side aspect. Wash hand basin. WC.

Lounge (6.78 x 3.55)

Double glazed bay window to front aspect and double glazed patio doors to rear leading to rear garden. Gas fire.

Kitchen/Breakfast Room (6.35 x 2.94)

Fully fitted kitchen with storage units and worksurfaces. Integrated appliances. Windows to rear aspect.

Utility Room (2.50 x 1.69)

Double glazed door to outside. Gas boiler. Sink and drainer. Space and plumbing for washing machine. Space for tumble drier.

Stairs & Landing

Staircase and galleried landing with a double glazed window to front aspect.

Principal Bedroom (3.77 x 3.45)

Double glazed window to rear aspect. Fitted wardrobes. Door to:

.

En Suite Shower Room

Large shower cubicle. WC and wash hand basin. Towel rail. Double glazed window to side aspect.

Bedroom Two (3.01 x 3.13)

Double glazed window to front aspect. Built in wardrobe.

Bedroom Three (2.94 x 3.03)

Double glazed window to rear aspect.

Bedroom Four (2.10 x 2.87)

Double glazed window to rear aspect. Built in wardrobe.

Family Bathroom

Double glazed window to front aspect. Towel rail radiator. Panelled bath with shower fitted over. WC and wash hand basin.

Front Garden

Block paved driveway to provide parking for at least four vehicles. Well stocked borders and gravelled areas.

Rear Garden

Fully enclosed by timber fencing. Shrubs and trees. Slabbed patio area. Gazebo which is a great outdoor entertaining area.

Double Garage (5.17 x 5.32)

Two up and over doors. Power & light connected.

Market Appraisal

If you are considering selling your property, we would be delighted to give you a free no obligation market appraisal. Our experience, knowledge and marketing with local and internet advertising will get your property seen and stand out from the crowd. Please contact us to arrange your property appraisal.

Conveyancing Services

Our solicitors work on a no sale, no fee basis. They work longer hours than the conventional solicitor and are available weekends. Please contact us for more information on our conveyancing services.

Mortgage Services

Crowhurst Gale can offer Panda Mortgage Services for professional mortgage advice and will help to find the right product that will suit your budget and needs from virtually the whole of the mortgage market.

Tax Band

Tax Band: F

Location




Facebook