Elborow Way, Cawston, Rugby

4 Bedroom House - Detached - £490,000 - Sold Subject to Contract

Key Features

  • Four Well Proportions Bedrooms
  • Two En-Suite Showers
  • Open Plan Living/Kitchen/Dining
  • Office
  • Lounge
  • Garage
  • Off Road Parking
  • Rear Garden With Decking
  • Utility Room
  • Very Popular Area

Property Details

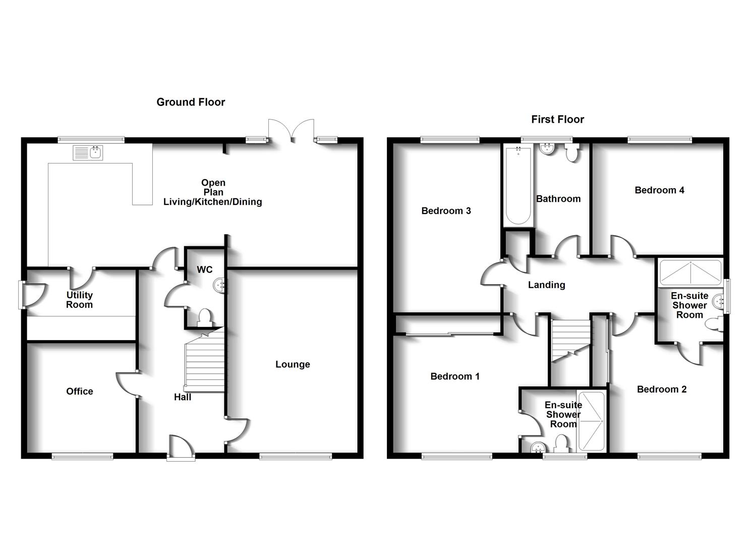
Crowhurst Gale Estate Agents are delighted to offer for sale this modern four bedroom detached family home situated in this highly sought after location on the south western outskirts of Rugby town. There are a range of amenities available within the immediate area to include a parade of local shops and stores, supermarkets, take away outlets, newsagents and excellent schooling for all ages. More comprehensive facilities are available in nearby Bilton village. The property offers versatile and well presented accommodation set over two floors and in brief comprises of an entrance hall, ground floor cloakroom/W.C, lounge, living/kitchen/dining room, separate utility room and an office. To the first floor, there are four well proportioned bedrooms with the principal and second bedroom having en-suite facilities. There is a separate family bathroom fitted with a modern suite. The property benefits from gas fired central heating to radiators and double glazing. Externally, there is an enclosed and lawned rear garden with decked area for alfresco dining and entertaining. To the rear/side of the property is a driveway providing ample off road parking and a single garage.

Entrance Hall

Doors leading to:

Guest WC

WC and washbasin.

Lounge (3.59 x 4.73)

Two windows to the side and front aspects.

Open Plan Living/Kitchen/Dining Room

Living Area (3.33 x 3.41)

French doors to rear garden.

Kitchen/Dining Area (5.02 x 3.18)

Fitted kitchen with built in appliances. Two windows to rear over looking the garden. Door leading to:

Utility Room (1.63 x 1.98)

Door to outside. Space for white goods.

Office (2.67 x 3.05)

Window to front.

First Floor Landing

Doors to:

Bedroom One (3.63 x 3.68)

Window to front.

En-Suite Shower (2.62 x 1.16)

Large shower, WC and washbasin. Window to front.

Bathroom (2.05 x 1.68)

Bath, WC and washbasin. Window to rear.

Bedroom Two (4.22 x 3.04)

Window to front aspect. Fitted wardrobes. Door to:

En-Suite Shower (1.17 x 2.33)

Large shower, WC and washbasin. Window to side.

Bedroom Three (4.40 x 2.66)

Window to rear aspect.

Bedroom Four (2.75 x 3.63)

Window to rear aspect.

Garage (5.91 x 3.00)

Single garage with an up and over door

Market Appraisal

If you are considering selling your property, we would be delighted to give you a free no obligation market appraisal. Our experience, knowledge and marketing with local and internet advertising will get your property seen and stand out from the crowd. Please contact us to arrange your property appraisal.

Mortgage Services

Crowhurst Gale can offer Panda Mortgage Services for professional mortgage advice and will help to find the right product that will suit your budget and needs from virtually the whole of the mortgage market.

Tax Band

Tax Band: F

Tenure

Freehold

Market Appraisal

If you are considering selling your property, we would be delighted to give you a free no obligation market appraisal. Our experience, knowledge and marketing with local and internet advertising will get your property seen and stand out from the crowd. Please contact us to arrange your property appraisal.

Local Authority

Rugby Borough Council

Viewing

By appointment only through Crowhurst Gale Estate Agents 01788 522266

Location




Facebook