Dreyer Close, Bilton, Rugby

4 Bedroom House - End Terrace - Guide Price £350,000 - Sold Subject to Contract

Key Features

  • Four Bedrooms
  • Extended and Renovated by the current owners
  • Living/Dining/Kitchen
  • Utility Room
  • Ground Floor Cloakroom/WC
  • Principal Bedroom With En-suite & Dressing Room
  • Lovely Location
  • Close To Schools
  • Good Amenities Close by
  • Double Glazing

Property Details

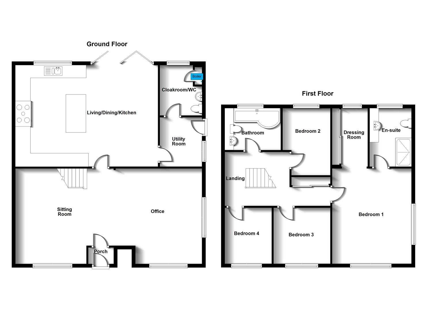
Crowhurst Gale estate agents are pleased to present this beautifully renovated and extended property in Dreyer Close, Bilton. The current owners have created a well designed four bedroom property briefly comprising: entrance porch, sitting room leading through to a home office, spacious living/dining/kitchen with bi-fold doors leading to the rear garden and patio area. Utility room and ground floor cloakroom/WC. Four well proportioned bedrooms, with the principle bedroom having en-suite and dressing room facilities. Family bathroom. Outside, the gardens envelope three sides of the property and include; patio areas, lawned area and a summer house currently used as a bar. Off road parking and separate garage. Book your viewing now to avoid disappointment.

Frontage

Parking area and small front garden. Gate to rear garden.

Entrance Porch

Door into:

Sitting Room (4.52 x 4.21)

Stair leading to first floor. Throughfare to:

Office Space (3.70 x 3.64)

Windows to front and side aspects.

Living/Dining/Kitchen (6.12 x 5.53)

Fitted kitchen with island unit and breakfast bar. Three 'Velux' windows and bi-fold doors leading to gardens.

Utility Room (2.04 x 2.90)

Plumbing for appliances. Window and door to side aspect.

Cloakroom (2.39 x 1.94)

WC and washbasin. Cupboard housing gas boiler. Opaque window to rear.

First Floor Landing

Fitted wardrobe. Doors to:

Principal Bedroom (4.00 x 3.68)

En-Suite Shower (2.51 x 1.84)

Large shower enclosure, WC and washbasin. Opaque window to rear.

Dressing Room (2.51 x 1.60 into fitted wardrobes)

Fitted wardrobes. Window to rear.

Bedroom Two (3.53 x 2.47)

Bedroom Three (2.53 x 2.35)

Window to front.

Bedroom Four (2.40 x 1.97)

Window to front.

Family/Guest Bathroom (2.11 x 1.94)

Panelled bath. WC and washbasin.

Gardens

Gardens to front, side and rear of the property. Timber summer house currently used as a bar.

Market Appraisal

If you are considering selling your property, we would be delighted to give you a free no obligation market appraisal. Our experience, knowledge and marketing with local and internet advertising will get your property seen and stand out from the crowd. Please contact us to arrange your property appraisal.

Mortgage Services

Crowhurst Gale can offer Panda Mortgage Services for professional mortgage advice and will help to find the right product that will suit your budget and needs from virtually the whole of the mortgage market.

Conveyancing Services

Our solicitors work on a no sale, no fee basis. They work longer hours than the conventional solicitor and are available weekends. Please contact us for more information on our conveyancing services.

Tax Band

Tax Band: D

Tenure

Freehold

Local Authority

Rugby Borough Council

Viewing

By appointment only through Crowhurst Gale Estate Agents 01788 522266

Location




Facebook