Coventry Road, Thurlaston, Rugby

5 Bedroom House - Detached - Asking Price £750,000 - For Sale

Key Features

  • Five Bedrooms
  • Lounge
  • Living/Dining/Kitchen
  • Utility Room
  • Well Stocked Rear Garden
  • Sun Room
  • Located On The Edge Of The Village
  • Close To Schools & Amenities
  • Three En-Suites
  • NO CHAIN

Property Details

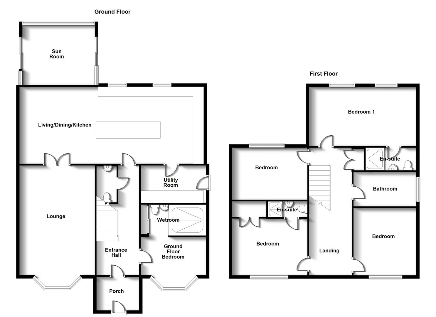
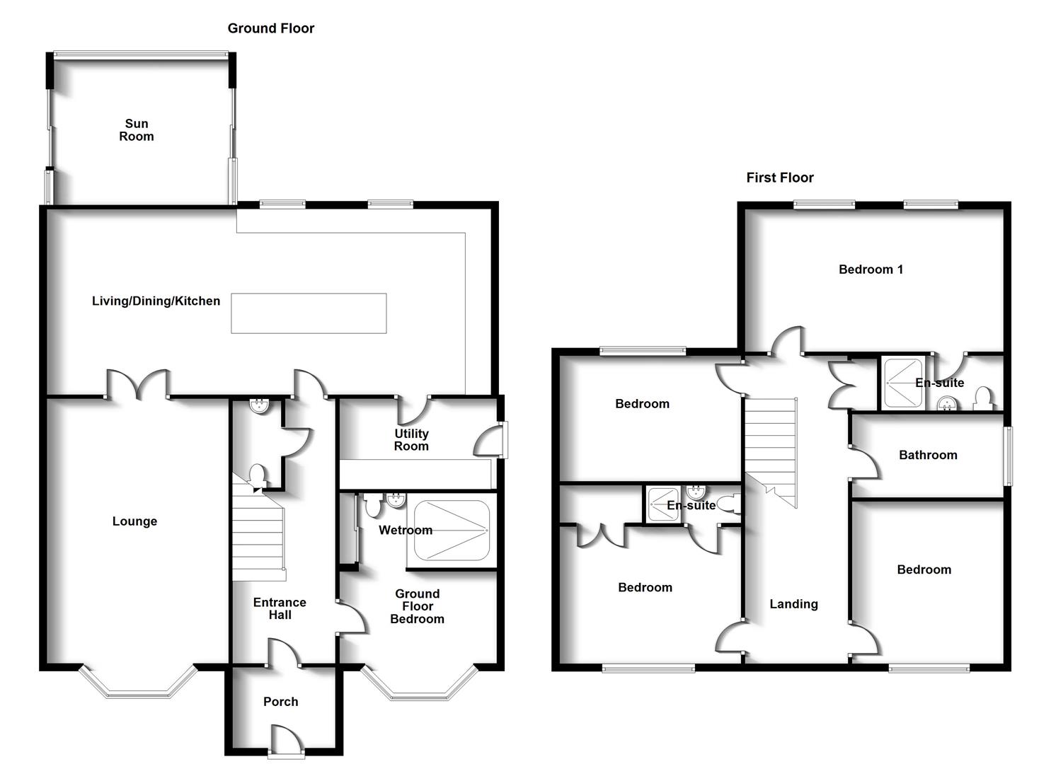
187 Coventry Road was built in 2021 and is part of the Nursery Gardens development on the edge of Thurlaston Village. This spacious property comes with off road parking for several vehicles and access to a double garage. The property extends to approximately 2000 sq ft with the accommodation comprising entrance hall, lounge, ground floor bedroom with wet room facilities, living/dining/kitchen, utility room, sun room and WC to the ground floor. To the first floor there are four well proportioned bedrooms including en suite to the principal bedroom and guest bedroom with a further family bathroom. Outside the rear garden is laid to lawn with a paved patio and raised planters and has access to the front. The property is offered to market with no upper chain and ready to view.

Porch

Entrance Hall

Lounge (3.60 x 5.93)

Bay window to front aspect. Double doors to:

Cloakroom/WC

WC and washbasin.

Ground Floor Bedroom (3.60 x 2.37)

Bat window to front aspect.

Wet Room (3.16 x 1.29)

Wet room shower. WC and washbasin.

Living/Dining/Kitchen (9.23 x 4.36)

Fully fitted kitchen with natural stone worktops. Fitted appliances. Windows over looking the rear garden. Doors to Sun Room. Door to:

Utility Room (3.64 x 1.85)

Fitted units. Plumbing for appliances. Door to outside..

Sun Room (3.72 x 3.46)

Solid roof. Sliding doors to both sides leading to rear garden.

First Floor Landing

Velux window. Doors leading to:

Principal Bedroom (5.46 x 3.25)

Two windows to rear aspect.

En-Suite (1.32 x 2.75)

Shower. WC and washbasin.

Bedroom (3.67 x 2.76)

Window to rear aspect.

Bathroom (3.40 x 1.90)

Bath and separate shower. WC, bidet and washbasin

Bedroom (3.59 x 2.81)

Window to front aspect.

Bedroom (3.64 x 2.62)

En-Suite

Shower. WC and washbasin.

Rear Garden

Well stocked rear garden.

Double Garage (6.00 x 6.00)

Market Appraisal

If you are considering selling your property, we would be delighted to give you a free no obligation market appraisal. Our experience, knowledge and marketing with local and internet advertising will get your property seen and stand out from the crowd. Please contact us to arrange your property appraisal.

Conveyancing Services

Our solicitors work on a no sale, no fee basis. They work longer hours than the conventional solicitor and are available weekends. Please contact us for more information on our conveyancing services.

Mortgage Services

Crowhurst Gale can offer Panda Mortgage Services for professional mortgage advice and will help to find the right product that will suit your budget and needs from virtually the whole of the mortgage market.

Tenure

Freehold

Local Authority

Rugby Borough Council

Viewing

By appointment only through Crowhurst Gale Estate Agents 01788 522266

Tax Band

Tax Band: G

Local Amenities

Dunchurch lies around 10 miles south east of Coventry with many of the local houses built in the 18th century however a short walk around will reveal some interesting timber framed properties dating back to the 17th century. Around an hour by train to London and with the major motorway network close by and Birmingham International Airport just half an hour away it is easy to understand the appeal of this quaint and picturesque village. There is a local Dentist, surgery, two public houses offering restaurant services. The local schools include Dunchurch Infant and Primary School as well as Rugby High School and Rugby private School within a 10 minute commute.

Location




Facebook