Alwyn Road, Bilton, Rugby

4 Bedroom House - Detached - Asking Price £425,000 - Sold Subject to Contract

Key Features

  • Four Bedrooms
  • Detached Property
  • Large Plot
  • Lounge With Separate Dining Room
  • Utility Room
  • South facing Rear Garden
  • Double Glazed
  • Highly Sought After Area
  • NO CHAIN
  • Garage & Parking

Property Details

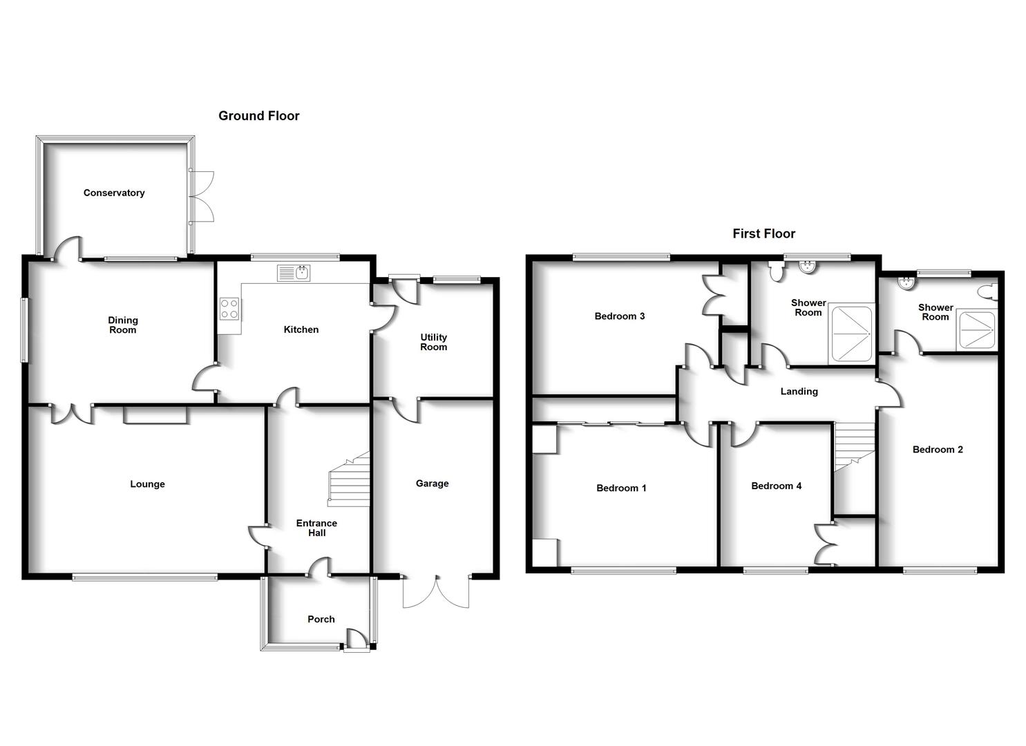
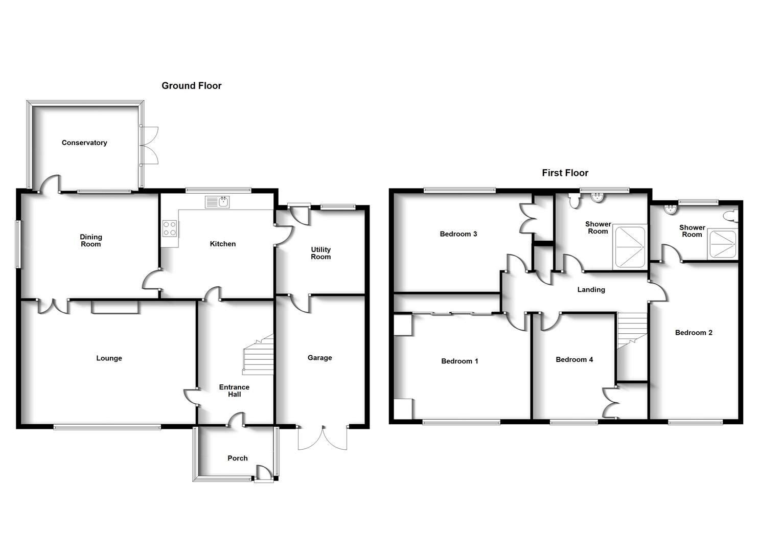
Crowhurst Gale are delighted to present this detached family home situated in the desirable location of Alwyn Road, Bilton, which overlooks parkland to the front. The property is within walking distance of Bilton village with its wide range of amenities including two general stores, two public houses and several specialist retail outlets including barbers/hairdressers, beauticians and butchers. In brief the accommodation on the ground floor comprises of: lounge, dining room, conservatory, fitted kitchen, utility room and single garage. On the first floor there is a a shower room and four bedrooms with one room having en-suite facilities. Outside there is parking for several vehicles and a good size rear garden to the rear. The property also benefits double glazing and gas heating to radiators. This property is being offered with NO UPWARD CHAIN.

Porch

Entrance Hall

Stairs to first floor. Doors to:

Lounge (5.23 x 3.65)

Conservatory (3.08 x 3.14)

Kitchen (3.02 x 3.31)

Utility Room (2.20 x 1.83)

First Floor Landing

Doors to:

Bedroom One (3.94 x 3.32)

Bedroom Two (5.08 x 2.39)

Door to En-suite

En-Suite (1.61 x 2.41)

Shower enclosure, WC and wash basin.

Bedroom Three (4.07 x 3.33)

Bedroom Four (3.31 x 2.14)

Shower room (2.06 2.39)

Shower enclosure. WC and washbasin.

Garage (5.20 x 2.22)

Double doors

Market Appraisal

If you are considering selling your property, we would be delighted to give you a free no obligation market appraisal. Our experience, knowledge and marketing with local and internet advertising will get your property seen and stand out from the crowd. Please contact us to arrange your property appraisal.

Conveyancing Services

Our solicitors work on a no sale, no fee basis. They work longer hours than the conventional solicitor and are available weekends. Please contact us for more information on our conveyancing services.

Mortgage Services

Crowhurst Gale can offer Panda Mortgage Services for professional mortgage advice and will help to find the right product that will suit your budget and needs from virtually the whole of the mortgage market.

Tax Band

Tax Band: E

Tenure

Freehold

Local Authority

Rugby Borough Council

Viewing

By appointment only through Crowhurst Gale Estate Agents 01788 522266

Location




Facebook