South Street, Rugby

3 Bedroom House - Terraced - Asking Price £230,000 - For Sale

Key Features

  • Spacious Edwardian Property
  • Three Bedrooms
  • Set Over Three Floors
  • Living/Dining Area
  • Enclosed Courtyard Garden
  • Split Level Brick Built Workshop
  • Utility Room/W.C
  • Original Features
  • Close To Rugby's Shopping Centre

Property Details

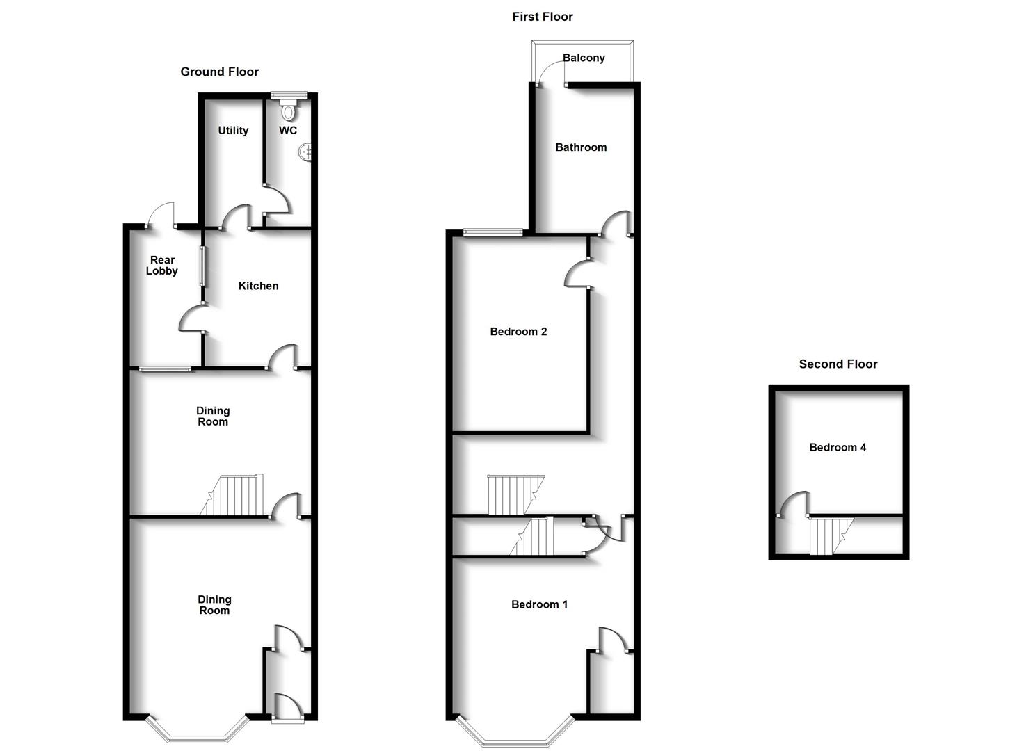
Crowhurst Gale are delighted to offer for sale this well presented and deceptively large three bedroom terrace property set over three floors - located in an ideal location within walking distance of Rugby town centre and railway station. The property in brief comprises: Entrance lobby, dining area, living area with feature fireplace, kitchen with appliances to include oven/hob, fridge/freezer, washing machine and dishwasher, utility room and ground floor W/C. To the first floor there are two double bedrooms and a large bathroom with freestanding bath, walk in shower and W/C - with door leading to an outside patio area. To the second floor is a further double bedroom with 'Velux' windows. Externally the property has an enclosed rear courtyard garden, and has the added bonus of a split level brick built workshop. This fantastic property which retains a wealth of character and original features is available for viewing now.

Entrance Lobby

Dining Area (4.53 x 3.97 max into bay)

Living Area (4.07 x 4.00)

Kitchen (3.69 x 2.6)

Utility Room (2.00 x 1.67)

Ground Floor W/C

Stairs Rising To First Floor Landing

Bedroom One (4.67 x 3.96 max into bay)

Bedroom Two (3.37 x 3.14)

Bathroom (3.45 x 2.52)

With door leading to patio area

Stairs Rising To Second Floor

Bedroom Three (4.7 x 3.62 with limited head height)

Enclosed Courtyard Garden

Market Appraisal

If you are considering selling your property, we would be delighted to give you a free no obligation market appraisal. Our experience, knowledge and marketing with local and internet advertising will get your property seen and stand out from the crowd. Please contact us to arrange your property appraisal.

Conveyancing Services

Our solicitors work on a no sale, no fee basis. They work longer hours than the conventional solicitor and are available weekends. Please contact us for more information on our conveyancing services.

Mortgage Services

Crowhurst Gale can offer Panda Mortgage Services for professional mortgage advice and will help to find the right product that will suit your budget and needs from virtually the whole of the mortgage market.

Tax Band

Tax Band: B

Tenure

Freehold

Local Authority

Rugby Borough Council

Viewing

By appointment only through Crowhurst Gale Estate Agents 01788 522266

Location




Facebook