Fareham Ave, Hillmorton, Rugby

4 Bedroom House with Annexe - Offers Over £450,000 - For Sale

Key Features

  • Three Bedrooms Property With Self Contained Annex/Bungalow
  • Detached Property
  • Renovated & Converted By The Current Owners
  • Kitchen/Dining Room
  • Lounge With French Doors
  • Gardens To Three Sides
  • Highly Sought After Location
  • Close To Schools & Aminities
  • Office & Seperate Dining Room
  • Ground Floor WC

Property Details

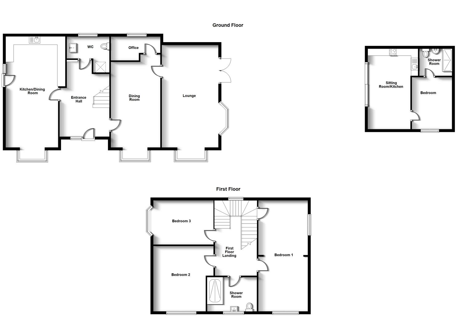
Crowhurst Gale are pleased to offer for sale this particularly impressive extended detached house and separate self contained annexe in the Paddox area of Hillmorton. Both properties accommodation comprises : Hallway, Lounge, Dining Room, Office, Kitchen/Diner, Guest WC, Three Bedrooms, Family Shower Room. The Annexe comprises: Open Plan Lounge/Kitchen, Double Bedroom And Shower Room. Outside there are gardens to three sides of the main house and parking for both properties. Book Your Viewing Slot NOW To Avoid Disappointment!!!!!

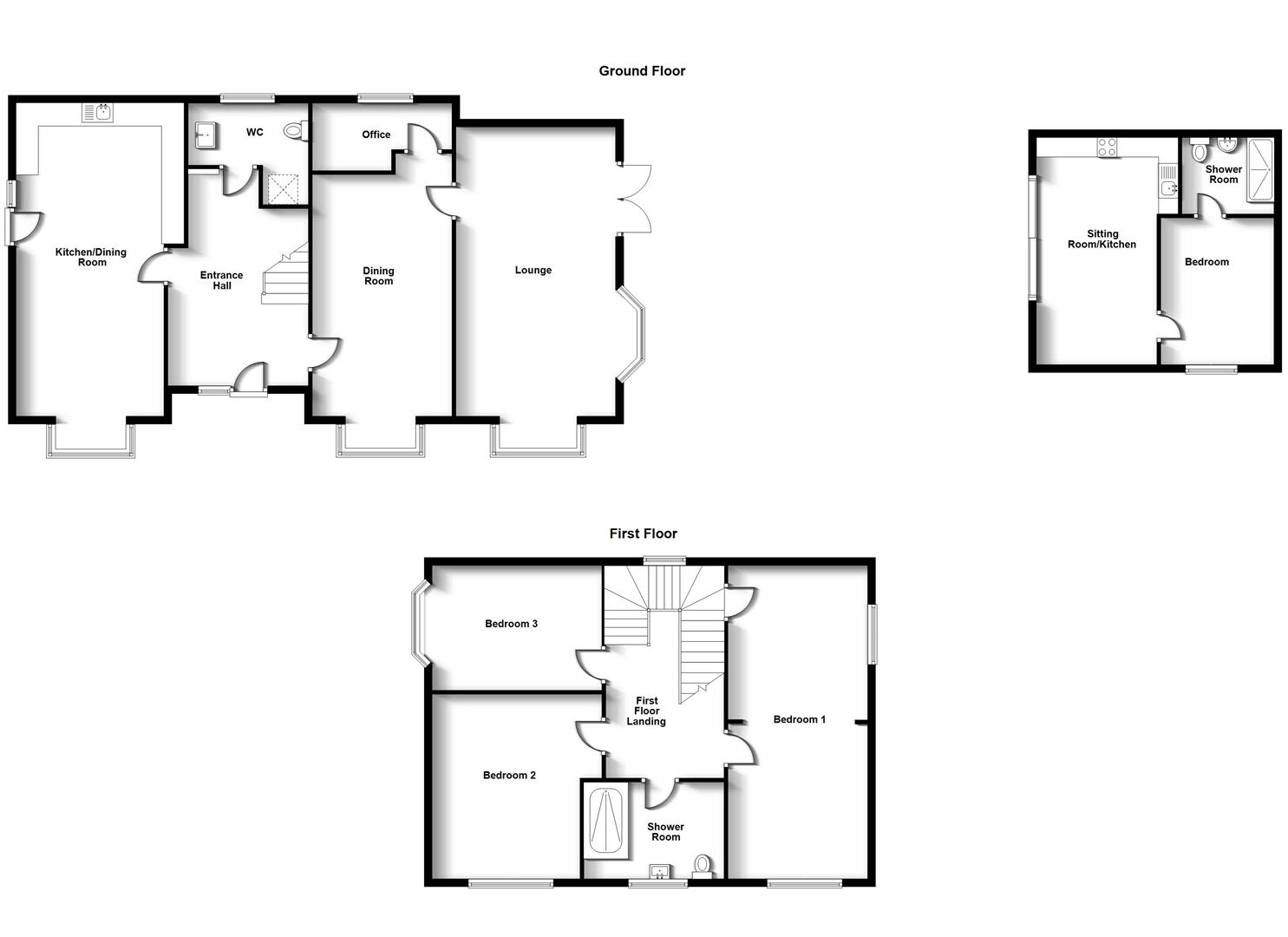
THE ANNEXE

This amazing space offers a large aluminium patio door with feature chapel window above that overlook the rear garden. The kitchen benefits from a built in electric oven, hob and extractor over. The bedroom benefits from an en suite walk in shower room with skylight window above.

The windows and doors are aluminium in the annexe and there is an electric fired combination boiler that was installed in 2024.

Open Plan Kitchen/Lounge, Large Aluminium Patio - 5.47m (17'11") x 2.64m (8'8") Min

Bedroom - 3.38m (11'1") x 2.62m (8'7")

En Suite Walk In Shower Room With Skylight Window - 1.94m (6'4") x 1.77m (5'10")

THE HOUSE

The main house comprises versatile accommodation to comprise entrance hall, ground floor cloakroom/W.C with plumbing and space for a washing machine, snug with box bay window, study and a spacious lounge with French doors and two bay windows.

The kitchen and dining room have been opened up and modernised to provide the modern kitchen/dining room which is perfect for entertaining. The kitchen has been refitted with shaker style kitchen units that are set within a contrasting quartz worktop. There are built in appliances to include a NEFF double oven with a hide and slide door, 5 ring gas hob with extractor canopy over, dishwasher and space for an upright American fridge/freezer.

To the first floor there is the first floor landing, main bedroom with two access doors that open up the opportunity to easily create an en suite or a fourth bedroom. There are two further bedrooms and a beautiful refitted shower room with walk in shower.

Externally there are gardens to the front and both sides of the property. To the left is a storage shed and a patio area with pergola over. The front garden wraps around to the right of the house where the established, well kept gardens over look a detached annexe.

The property is double glazed and there is a Worcester Bosch gas fired combination boiler in the kitchen.

Entrance Hall (3.71m x 2.47m max)

Stairs leading to first floor. Doors leading to:

Ground Floor W.C (2.14m x 0.82m min `L` shaped room)

WC and wash basin. Space For A Washing Machine

Lounge (5.44m x 4.15m plus bay)

With French Doors

Dining Room (3.88m plus bay x 3.05m)

Refitted Open Plan Kitchen/Dining Room

Kitchen Area (3.14 x 3.72)

Dining Area (3.33 x 3.44 into bay)

Study (2.86m x 1.62m max)

FIRST FLOOR

First Floor Landing

Bedroom One (5.54m x 3.04m)

Bedroom One with two access doors from the landing as it was two rooms prior to conversion (the wall could go back to recreate the fourth bedroom).

Bedroom Two (3.24m (10'8") Min x 2.73m (8'11"))

Bedroom Three With Bay Window (3.64m x 2.13m)

Walk In Shower Room (2.56m x 1.67m)

Gardens And Parking

Well stocked gardens to three sides. Driveway for two cars

LOCATION

The property is situated within one of the most sought after areas of Hillmorton, Rugby. Hillmorton is located to the south east of Rugby Town centre. Within the area are a wide range of amenities to include the Paddox Primary School and Ashlawn School Academy Trust, both with outstanding reputations. Hillmorton has easy access to the surrounding road and motorway connections to include the A45, A5, A14, M6 and the M1.

Market Appraisal

If you are considering selling your property, we would be delighted to give you a free no obligation market appraisal. Our experience, knowledge and marketing with local and internet advertising will get your property seen and stand out from the crowd. Please contact us to arrange your property appraisal.

Conveyancing Services

Our solicitors work on a no sale, no fee basis. They work longer hours than the conventional solicitor and are available weekends. Please contact us for more information on our conveyancing services.

Mortgage Services

Crowhurst Gale can offer Panda Mortgage Services for professional mortgage advice and will help to find the right product that will suit your budget and needs from virtually the whole of the mortgage market.

Local Authority

Rugby Borough Council

Tenure

Freehold

Tax Band

House Tax Band: D Annex: A

Location




Facebook