Willow Gardens, Long Lawford, Rugby

3 Bedroom House - Semi-Detached - £875 Fees Apply - Let Agreed

Key Features

  • Modern Semi Detached
  • Lounge & Cloakroom
  • Kitchen/Dining Area
  • Three Bedrooms
  • Bathroom
  • Double Glazing & Gas Central Heating
  • Rear Garden
  • Two Parking Spaces
  • Unfurnished
  • Available Beginning Of October

Property Details

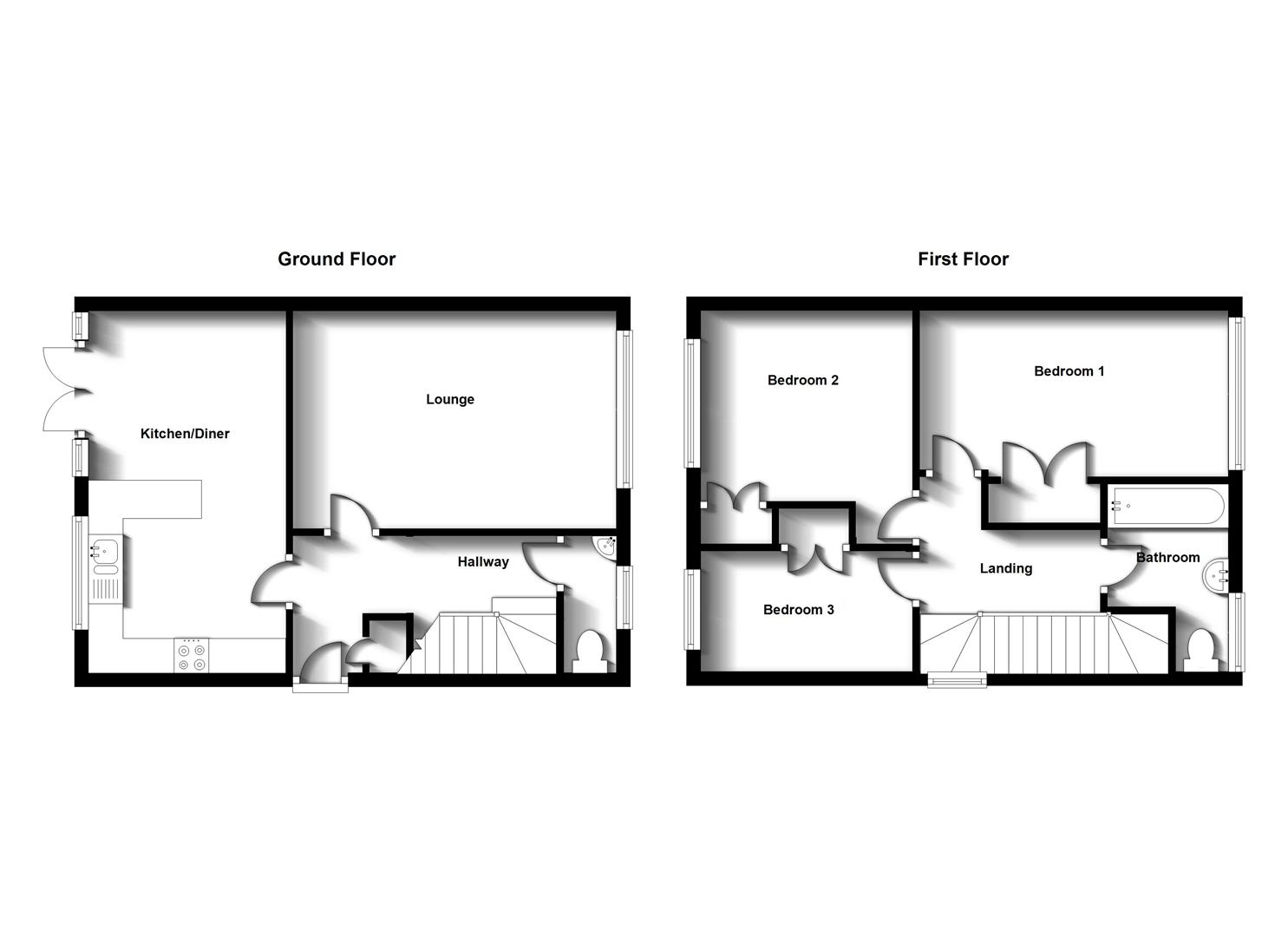
We are pleased to present this modern semi detached property situated down a private Cul-De-Sac in the sought after area of Long Lawford, Rugby. This property is situated close to schooling, local amenities and the village park. In brief the property comprises: Entrance hall, lounge, kitchen/dining area and cloakroom to the ground floor. To the first floor there are three bedrooms and bathroom. The property further benefits from gas central heating, double glazing, rear garden and two parking spaces. Available beginning of October, unfurnished.

Frontage

Located down a private Cul-De-Sac. Access to rear garden via timber gate. Parking for two vehicles.

Entrance Hall

Enter via part double glazed door. Stairs rising to the first floor, door to storage cupboard. Radiator. Doors to:

Lounge (3.94m x 3.15m)

Upvc double glazed window to the side aspect. T.V aerial point, radiator.

Kitchen/Dining Area (5.26m x 2.77m)

Upvc double glazed window to the rear aspect. Upvc double glazed french doors leading onto rear garden.
A range of eye and base level units with work top surfaces, inset one and a half stainless steel sink with drainer and mixer tap over. Fitted 'Hotpoint' four ring hob with extractor over and 'Hotpoint'double oven below. Fitted fridge/freezer. Space and plumbing for washing machine. Radiator, ceiling spotlights. Wall mounted gas combi boiler.

Cloakroom

Upvc obscure double glazed window to the side aspect. Low level w.c, wash hand basin. Radiator, ceiling spotlights. Extractor fan.

First Floor Landing

Upvc double glazed window to the front aspect. Doors to:

Bedroom One (4.00m x 2.62m)

Upvc double glazed window to the side aspect, radiator. Fitted wardrobes. Access to loft space.

Bedroom Two (3.26m x 2.81m)

Upvc double glazed window to the rear aspect, radiator. Fitted wardrobes.

Bedroom Three (3.04m x 1.93m)

Upvc double glazed window to the rear aspect, radiator. Fitted wardrobes.

Bathroom (2.52m max norrowing to 1.55m 1.71m x)

Upvc obscure double glazed window to the side aspect. A part tiled suite comprising bath with mains fitted shower over. Low level w.c, wash hand basin. Ceiling spotlights, extractor fan, heated towel rail.

Rear Garden

Enclosed rear garden with paved patio and lawn area.

Tax Band

Tax Band: C

Disclaimer

Tenancy: For a minimum period of 6 months on an Assured Shorthold Tenancy. References will be required prior to the tenancy application being accepted. Rent: £875 per month exclusive of rates and outgoings. As well as paying the rent, you may also be required to make the following permitted payments • Holding deposit: equivalent to one weeks rent • Security deposit equivalent to 5 weeks rent (6 weeks if the annual rent is £50,000 or over)• Utilities Default charges:• Replacement keys and other security devices - charged at cost of the key(s) and other security device(s) replacement(s)• Rent arrears - 3% above the Bank of England base rate Other possible charges:• Notation of contract (where a tenancy is ended in place of another one following a change of tenant) - £50• Variation of contract (for example, change of rent date) - £50• Change of sharer - £50 per tenant • Surrender of tenancy - tenant liable to pay the rent for the whole period (within reason) as well as landlord costs of re-letting the property as detailed on our landlord fee schedule - www.crowhurst-gale.co.uk Pets: Where formally accepted by the landlord there may be an additional amount added to the current monthly rent. Tenancy Application Form: To receive a tenancy application form for this property please contact us on 01788 522266 (option 2): Tenant protection: Crowhurst Gale Property Lettings Ltd is a member of propertymark Client Money Protection (Scheme Reference: C0131238), which is a client money protection scheme, and also a member of redress scheme The Property Ombudsman (TPO) Reference: T02859, which is a redress scheme. You can learn more by contacting us directly. Crowhurst Gale Property Lettings are a member of Deposit Protection Service, an insured and custodial deposit protection scheme www.depositprotection.com. Disclaimer: These particulars may be subject to errors and/or omissions; therefore, a prospective tenant(s) must satisfy themselves by inspection or otherwise as to their correctness. The text measurements, photographs plan and (if applicable) are presented in good faith as a general guide and therefore must not be relied upon as statements or representations of fact and do not constitute part of an offer or contract. As the agent, we have not formally verified any availability or operation of services and/or appliances noted. Therefore, prospective tenant(s) are advised to validate all such information prior to expressing any formal intent to let. All fixtures and fittings not mentioned are excluded from the tenancy. The property is let subject to any rights of way, easements, wayleaves, covenants, any other issues or planning matters that may affect the legal title.

Location




Facebook