Little Church Street, Town Centre, Rugby

2 Bedroom Apartment - £900 Fees Apply - Let Agreed

Key Features

  • Town Centre Location
  • Stylish & Modern
  • Split Level
  • Two Double Bedrooms
  • Kitchen
  • Dining Room
  • Lounge
  • Bathroom
  • Secure Allocated Parking
  • Available NOW - Unfurnished

Property Details

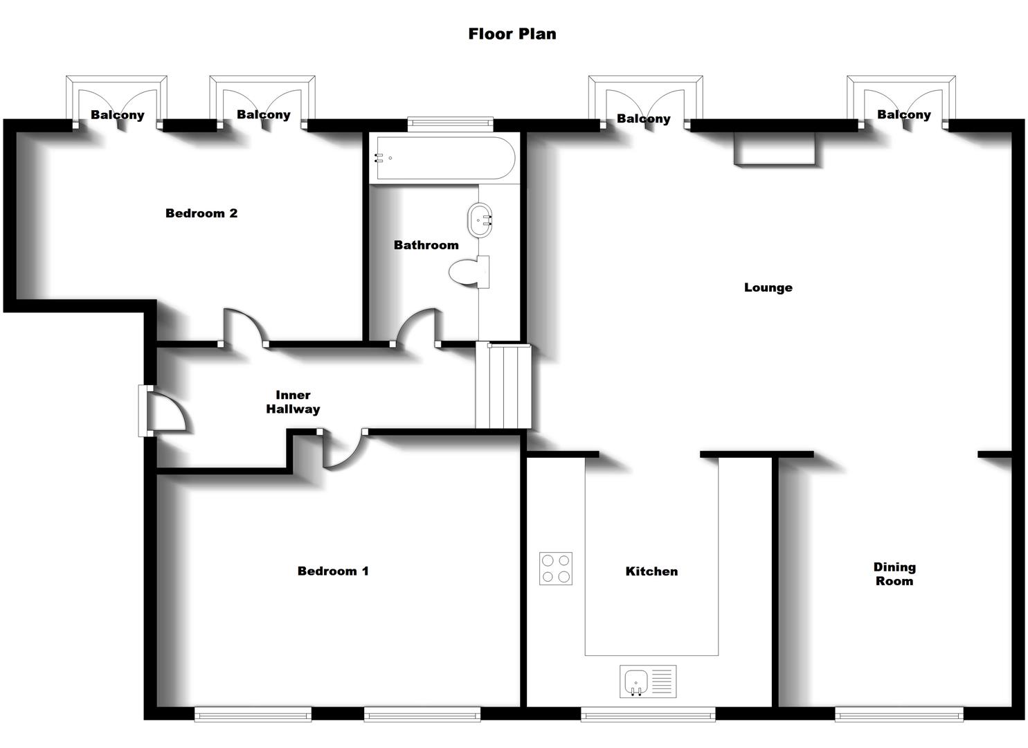
Crowhurst Gale are pleased to present this modern and stylish first floor split level apartment situated in the heart of Rugby. With historic Rugby School on your door step this property and location is perfect for those looking for modern living. The apartment comprises: entrance hall, lounge, dining room, kitchen, two double bedrooms and a bathroom. Further benefits include double glazing, modern electric heating, a secure gated parking area with one allocated parking space and further car port with power outlet. Available NOW - Unfurnished.

Frontage

Double iron gates to secure parking area. Paved parking courtyard. Door to:

Communal Entrance

Communal entrance door with secure intercom entry system. Automatic courtesy lighting. Stairs rising to first floor.

Entrance Hall

Electric wall mounted heater. Coving to ceiling. Doors to

Bedroom One (4.38m x 2.89m)

Two double glazed sash window to front aspect. Wall mounted electric heater. Ceiling spotlights. Coving to ceiling.

Bedroom Two (4.00m max x 3.44m max)

Two double glazed french doors leading to separate balcony's. Wall mounted electric heater. Ceiling spotlights. Coving to ceiling.

Bathroom

Obscure double glazed sash window to rear aspect. A part tiled suite comprising: panelled bath mixer tap and shower attachment over. Inset wash hand basin. Low level W.C. Heated towel rail and extractor fan.

Inner Hall

Stairs rising to:

Lounge (5.18m x 3.43m)

Two sets of double glazed french doors leading to two separate balcony's. Feature fire place with inset electric fire. Wall mounted electric heater. Ceiling spotlights, coving to ceiling. Opening into:

Dining Room (2.81m x 2.70m)

Double glazed sash window to front aspect. Wall mounted electric heater. Ceiling spotlights, coving to ceiling. View point into kitchen.

Kitchen (2.82m x 2.44m)

Double glazed sash window to front aspect. A range of eye and base level with granite work top surfaces, inset one and a half stainless steel sink with drainer and mixer tap over. Tiled splash back areas. Built in fridge/freezer. Fitted 'SMEG' cooker with extractor over. Space and plumbing for dishwasher. Built in automatic washer/dryer. Tiled flooring. Access to loft space.

Parking Area

One allocated parking space with further allocated covered area with power outlet.

Disclaimer

Tenancy: For a minimum period of 6 months on an Assured Shorthold Tenancy. References will be required prior to the tenancy application being accepted. Rent: £1000 per month exclusive of rates and outgoings. As well as paying the rent, you may also be required to make the following permitted payments • Holding deposit: equivalent to one weeks rent • Security deposit equivalent to 5 weeks rent (6 weeks if the annual rent is £50,000 or over)• Utilities Default charges:• Replacement keys and other security devices - charged at cost of the key(s) and other security device(s) replacement(s)• Rent arrears - 3% above the Bank of England base rate Other possible charges:• Notation of contract (where a tenancy is ended in place of another one following a change of tenant) - £50• Variation of contract (for example, change of rent date) - £50• Change of sharer - £50 per tenant • Surrender of tenancy - tenant liable to pay the rent for the whole period (within reason) as well as landlord costs of re-letting the property as detailed on our landlord fee schedule - www.crowhurst-gale.co.uk Pets: Where formally accepted by the landlord there may be an additional amount added to the current monthly rent. Tenancy Application Form: To receive a tenancy application form for this property please contact us on 01788 522266 (option 2): Tenant protection: Crowhurst Gale Property Lettings Ltd is a member of propertymark Client Money Protection (Scheme Reference: C0131238), which is a client money protection scheme, and also a member of redress scheme The Property Ombudsman (TPO) Reference: T02859, which is a redress scheme. You can learn more by contacting us directly. Crowhurst Gale Property Lettings are a member of Deposit Protection Service, an insured and custodial deposit protection scheme www.depositprotection.com. Disclaimer: These particulars may be subject to errors and/or omissions; therefore, a prospective tenant(s) must satisfy themselves by inspection or otherwise as to their correctness. The text measurements, photographs plan and (if applicable) are presented in good faith as a general guide and therefore must not be relied upon as statements or representations of fact and do not constitute part of an offer or contract. As the agent, we have not formally verified any availability or operation of services and/or appliances noted. Therefore, prospective tenant(s) are advised to validate all such information prior to expressing any formal intent to let. All fixtures and fittings not mentioned are excluded from the tenancy. The property is let subject to any rights of way, easements, wayleaves, covenants, any other issues or planning matters that may affect the legal title.

Location




Facebook