Berrybanks, Rugby

3 Bedroom House - End Terrace - Price Guide £342,500 - For Sale

Key Features

  • Extended Three Bedroom Townhouse With Garage
  • Spacious Lounge/Dining Room
  • Recently Fitted Kitchen
  • Landscaped Gardens
  • Double Glazing
  • Gas Heating
  • Sought After Location
  • Principal Bedroom With En-suite
  • Good Size Bedrooms
  • Extended To The Rear

Property Details

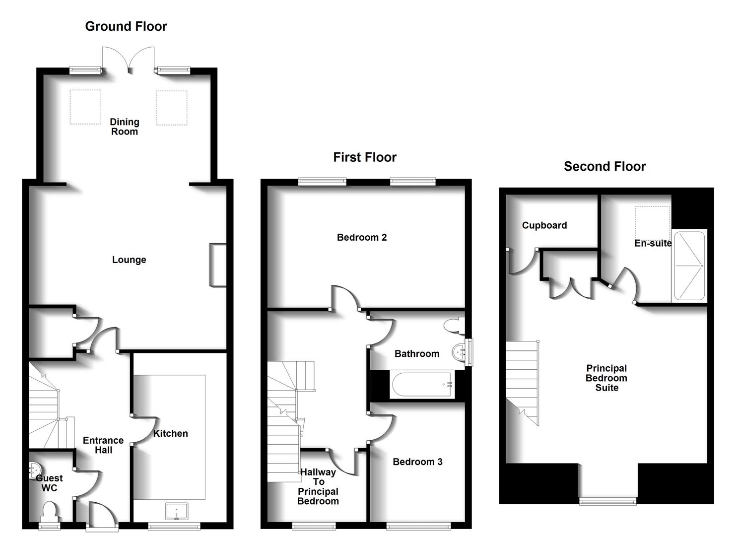
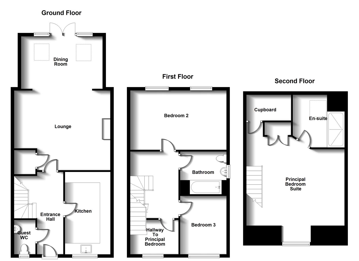
Crowhurst Gale are delighted to offer this stunning three bedroom town house, situated within the popular residential area of Bilton, Rugby. The property has landscaped front and rear gardens, single garage with off road parking and internally offers good accommodation across three floors, briefly comprises of kitchen, ground floor WC, lounge, dining room, three bedrooms, family bathroom and en-suite to the principal bedroom.

Frontage

Paved pathway leading to the side and rear of the property.

Entrance Hall

Stairs to first floor. Doors to:

Ground Floor WC

Kitchen (3.63 x 2.41)

Fitted kitchen with built in appliances.

Open Plan Lounge/Dining Room

Lounge (4.53 x 4.58)

Electric fireplace.

Dining Room (2.61 x 4.38)

Two 'Velux windows. French doors leading rear garden.

First Floor Landing

Door and stairs to Principal Bedroom Suite. Doors to:

Bedroom Three (3.00 x 2.39)

Window to front aspect.

Bedroom Two (3.40 x 4.61)

Window to rear aspect.

Bathroom (2.13 x 1.80)

Panelled bath with shower fitted over. WC and washbasin. Window to side aspect.

Principal Bedroom Suite (4.60 x 4.57)

Door leading from the first floor landing into hallway. Stairs raising to bedroom and en-suite.

Rear Garden

Garage

Single Garage

Market Appraisal

If you are considering selling your property, we would be delighted to give you a free no obligation market appraisal. Our experience, knowledge and marketing with local and internet advertising will get your property seen and stand out from the crowd. Please contact us to arrange your property appraisal.

Mortgage Services

Crowhurst Gale can offer Panda Mortgage Services for professional mortgage advice and will help to find the right product that will suit your budget and needs from virtually the whole of the mortgage market.

Conveyancing Services

Our solicitors work on a no sale, no fee basis. They work longer hours than the conventional solicitor and are available weekends. Please contact us for more information on our conveyancing services.

Local Authority

Rugby Borough Council

Tenure

Freehold

Tax Band

Tax Band: C

Viewing

By appointment only through Crowhurst Gale Estate Agents 01788 522266

Location




Facebook